Prodej bytu, 2+kk, 56 m²
Prodej bytu 2+kk 54 m² s balkonem
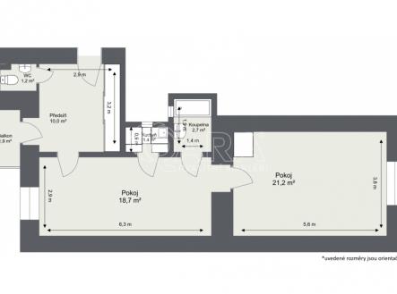
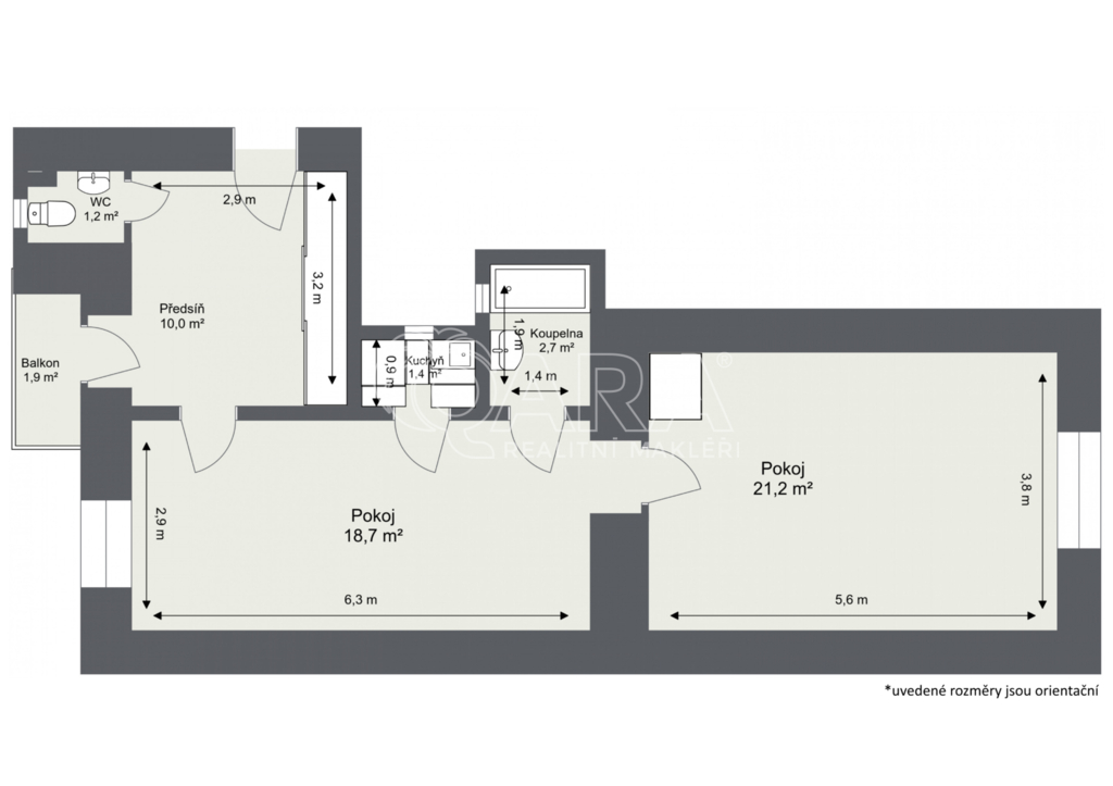
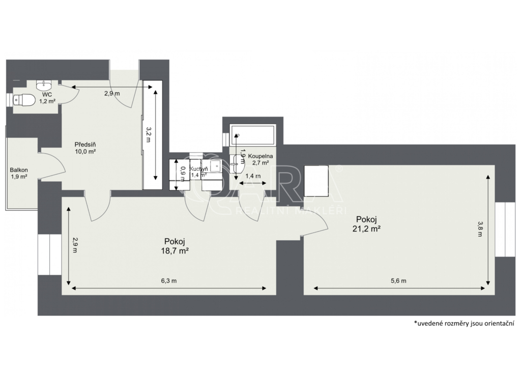
Hledáte byt v klidné a žádané lokalitě? Nabízím byt 2+kk o velikosti 54,46 m² v pražských Vysočanech. Byt se nachází v druhém nadzemním podlaží udržovaného cihlového domu, kde již byla vyměněna okna za plastová. Byt je v původním stavu a je určen spíše k rekonstrukci, což novému majiteli dává ideální příležitost upravit si bydlení přesně podle vlastních představ. K bytu náleží balkon 2 m² a sklep v suterénu domu. Měsíční náklady na bydlení činí 2 656 Kč (plus elektřina dle dodavatele). Lokalita Vysočan patří mezi velmi žádané části Prahy díky skvělé kombinaci klidného prostředí a výborné dostupnosti do centra. Stanice metra Vysočanská je pouze 3 minuty pěšky. V okolí se nachází kompletní občanská vybavenost – obchody, restaurace, školy, školky i sportovní a volnočasové vyžití. Cena bytu je 6 890 000,- Kč, včetně provize, právního servisu, bezpečné úschovy a všech poplatků. Byt je možné financovat hypotékou, s čímž vám rád pomůže náš hypoteční specialista. Pro více informací nebo domluvení prohlídky mě neváhejte kontaktovat.


