Prodej bytu, 2+kk, 50 m²
Prodej bytu 2+kk 50 m²
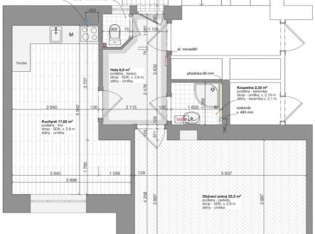
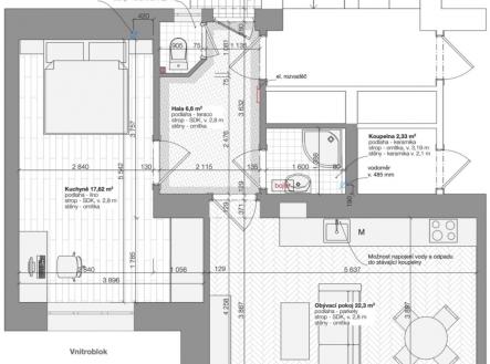
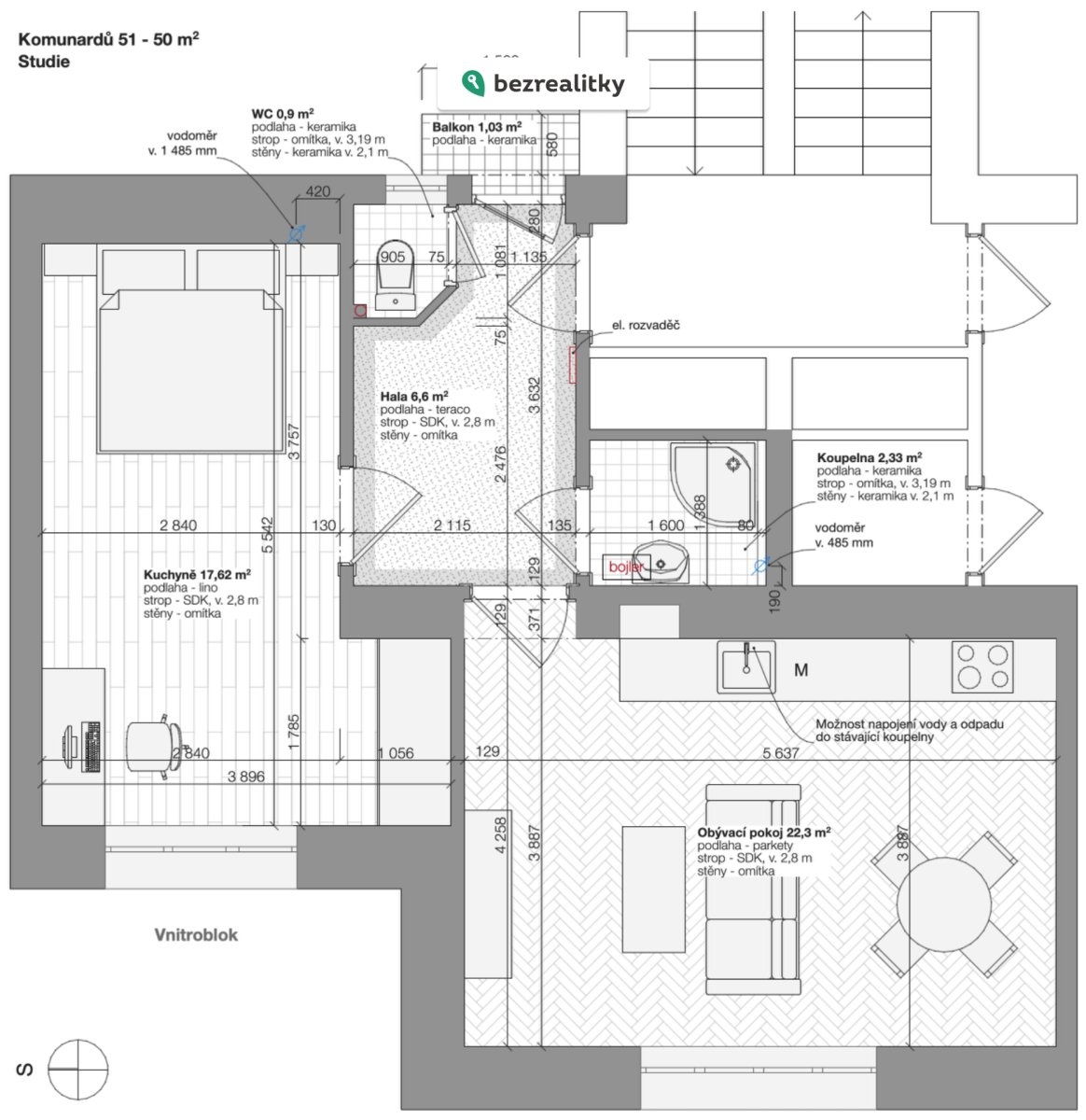
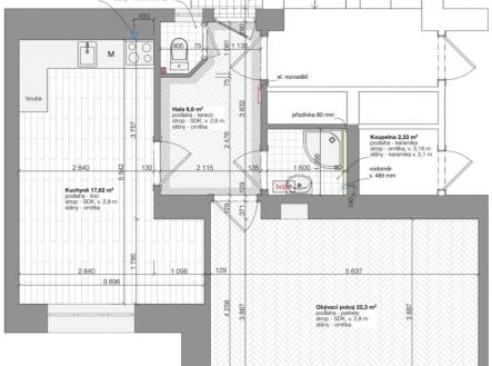
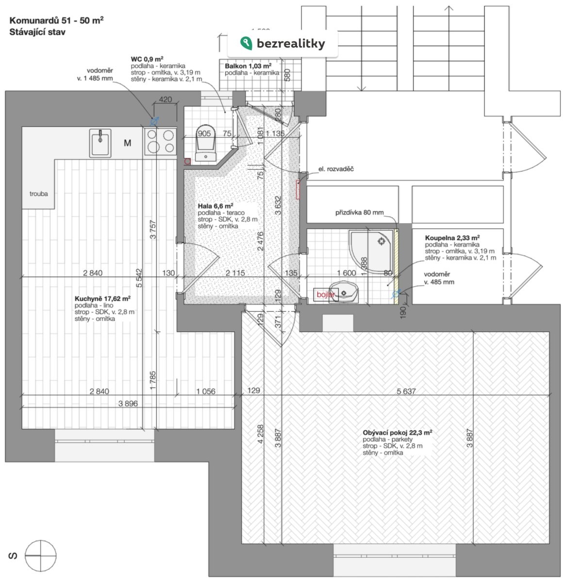
Vlastnictví - Osobní Dispozice - 2+kk Plocha bytu - 49,8 m2 Podlaží - 4. Sklep - Ano, viz foto Vytápění - Nové el. akumulační radiátory, wifi ovládání Teplá voda - El. bojler Okna - Plastová, izol. Dvojsklo Elektroměr - 3 fáze, 3x25A Rozvody el. - Měď, nedávná rekonstrukce Balkon - Ano, do prostoru mezi domy Výtah - Ano, do mezipodesty Přílohy k prohlídce - bezdlužnost SVJ, PENB, prohlášení vlastníka, list vlastnictví, návrh kupní smlouvy, skutečné zaměření bytu s dispoziční studií, zápis ze shromáždění SVJ za rok 2025, aktuální předpis záloh Byt je velmi světlý. Obě obytné místnosti směřují do klidného vnitrobloku se západní orientací. Je po nedávné rekonstrukci (omítky, elektro, kuchyně, okna…) a je možné jeho okamžité užívání. Výšky a rozměry místností, návaznosti dispozice a povrchy jsou popsány v přiložených půdorysech. V obývacím pokoji jsou původní parkety v dobrém stavu. V chodbě je původní teraco, které by chtělo zrenovovat. V kuchyni je stávající linoleum na DTD velkoplošných deskách, které s největší pravděpodobností překrývají původní parkety nebo podlahová prkna - sonda nebyla provedena. Dispozičně je možné přemístit kuchyni do větší obytné místnosti s napojením odpadů a vody do koupelny. Společné prostory domu jsou udržované a čisté s původními povrchy a detaily. SVJ řádně fungující. Zápis ze shromáždění za rok 2025 k nahlédnutí. Aktuální výše předepsaných záloh je 2 359 Kč (předpis záloh k nahlédnutí) Jedná se o přímý prodej bez provize realitní kanceláři. Realitní kanceláře prosím nekontaktovat. Tato nemovitost je určena výhradně přímým zájemcům o koupi. Na inzerát můžete také reagovat přímo na webu Bezrealitky: https://www.bezrealitky.cz/nemovitosti-byty-domy/964051-nabidka-prodej-bytu-komunardu-praha


