Prodej bytu, 2+kk, 46 m²
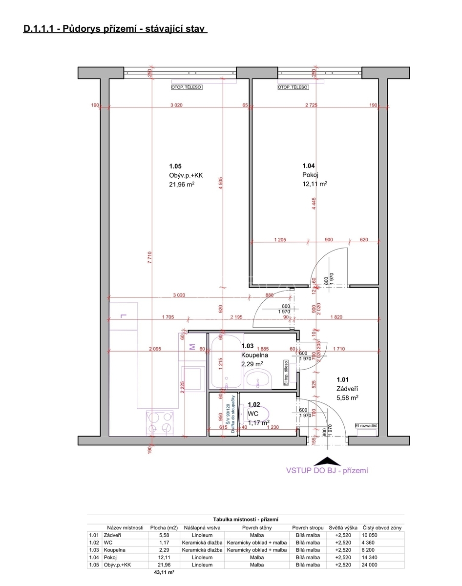
Prodej bytu 2+kk, 43 m2
K prodeji nabízíme přízemní jednotku 2+kk, po rekonstrukci. Bytová jednotka je vhodná jako startovací nebo investiční byt. Aktuálně je jednotka stále v družstevním vlastnictví, v dohledné době bude ovšem převedena do osobního. - nové rozvody elektřiny - nové radiátory typu Radik - podhledy - laminátová podlaha a keramická dlažba - dálkové vytápění + topný žebřík v koupelně - plastová okna s dvojskly - příprava na kuchyňskou linku (majitelem nebude instalována) Orientační velikost místností: Obývací pokoj: 16,23 m2 Kuchyňská kout: 4,64 m2 Ložnice: 12,08 m2 Koupelna: 2,27 m2 Předsíň: 6,66 m2 Toaleta: 1,1 m2 -------------------------------- Celkem: 42,98 m2 + sklepní kóje: 2,93 m2 Nemovitost je právně čistá, není zde žádný úvěr ani jiný právní problém. Je tedy možné financovat hypotečním úvěrem.


