Prodej bytu, 2+kk, 43 m²
Prodej bytu 2+kk 43 m², Praha - Kamýk
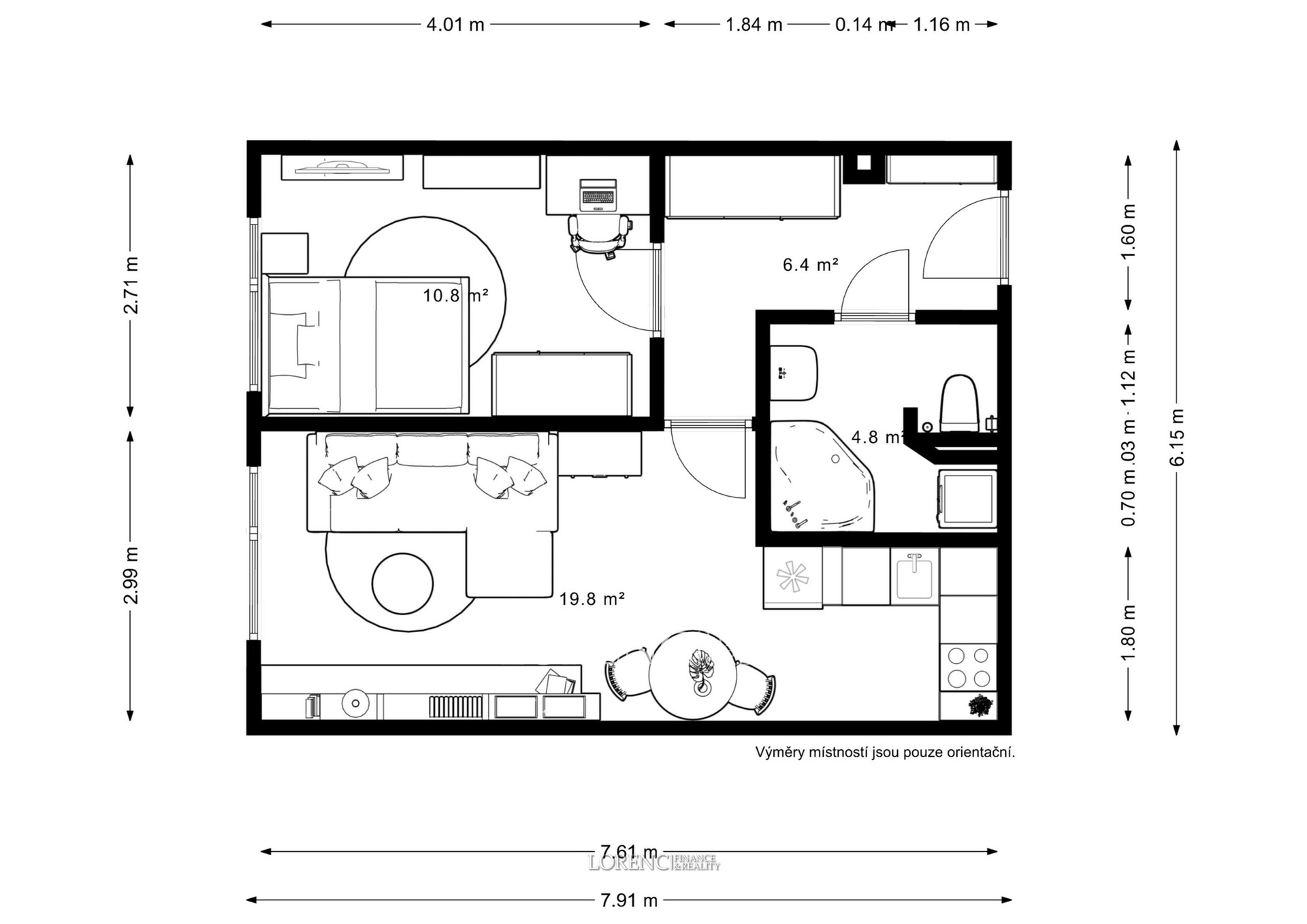
Exkluzivně nabízíme ke koupi bytovou jednotku v oblíbené městské části Praha – Kamýk, jen pár kroků od autobusové zastávky. Lokalita je strategicky velmi dobře situovaná a ideální zejména pro rodinné bydlení. Nedaleko je plánována nová stanice metra D. V bezprostředním okolí se nachází několik mateřských a základních škol, včetně prestižní Britské mezinárodní školy. Milovníci přírody ocení blízkost Lhoteckého lesa a přírodního parku Modřanská rokle, které jsou ideálním místem pro procházky, sport i relaxaci. Byt má dispozici 2+kk a užitnou plochu 43 m². Nachází se v 2. nadzemním podlaží udržovaného bytového domu s výtahem. Dispozice bytu je velmi praktická – vstupní prostorná předsíň (6,4 m²) vybavená vestavěnými skříněmi. Po levé straně se nachází samostatná koupelna s toaletou (4,8 m²), která prošla rekonstrukcí. Dominantou bytu je světlý obývací pokoj s kuchyňským koutem o velikosti 19,8 m², orientovaný tak, aby poskytoval dostatek denního světla. Naproti vstupu do bytu se nachází samostatný pokoj o velikosti 10,8 m², ideální jako ložnice nebo dětský pokoj. Měsíční poplatky spojené s užíváním bytu činí 6.721 Kč, z toho fond oprav 1.300 Kč. Elektřina přibližně 1.000 Kč. Prohlídky jsou možné kdykoliv po předchozí domluvě. Uvedená kupní cena je stanovena včetně provize a kompletního právního servisu.


