Prodej bytu, 2+kk, 38 m²
Prodej bytu 2+kk, 38 m2, Zoubkova, Smíchov
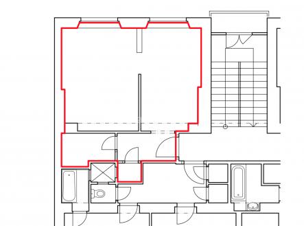
Nabízíme zděný byt 2+kk o celkové ploše 38,42 m², ve 3. patře v klidné lokalitě širšího centra Prahy 5 - Smíchov. Byt je v současnosti užíván jako 1+kk a je vhodný k částečné rekonstrukci. S okny do klidného dvora na západ. V mezipatře domu jsou balkóny, např. pro věšení prádla. Ze zadního vchodu domu je vstup na menší zahradu, kterou lze využívat. Dům je v klidné ulici. Rozměry místností: předsíň 3,53 m², obývací pokoj s KK 13,40 m², koupelna s WC 3,51 m², pokoj 16,97 m², komora 1,01 m². Vytápění je elektrickými přímotopy. Příprava teplé vody v elektrickém zásobníku. Koupelna je s vanou, umyvadlem a WC, vejde se tam i pračka. Výborná dostupnost. Metro a tramvaj do 10 min pěšky na stanici Anděl. 150 m je zastávka autobusu. Rychlé spojení na dálnici D5 a Pražský okruh. Smíchov disponuje vlakovým i autobusovým nádražím i pro příměstské spoje. V docházkové vzdálenosti je ZŠ i MŠ, supermarket Albert, restaurace, ostatní občanská vybavenost v nedalekém centru Smíchova, kde je i obchodní centrum Nový Smíchov. V blízkosti je zimní stadion Nikolajka. Parkování je možné v okolních komunikacích. V blízkosti lokality jsou přírodní oblasti Šalamounka, Měchurka, sportovní areál Santoška. Ideální pro mladé páry nebo investory, kteří hledají bydlení s potenciálem v atraktivní lokalitě s výbornou dopravní dostupností. Byt je aktuálně pronajatý s možností pokračování nájmu. Ev. číslo: 27941.


