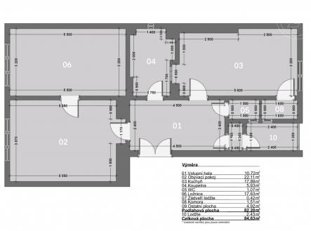
Prodej bytu, 2+1, 87 m²
Prodej bytu 2+1 s lodžií a sklepem, OV, 87 m², Praha 3 Žižkov, ulice Baranova
Hledáte bydlení, které není jen adresa, ale skutečný životní styl? Tento prostorný byt Vás okouzlí kombinací atraktivní lokality, klidu a nekonečných možností vlastního vyjádření. Baranova ulice leží na rozhraní Žižkova a Vinohrad mimo ruch hlavních tepen. Stačí vyjít ven a nadechnout se – na dosah máte Riegrovy sady i Parukářku, dvě zelené oázy, kde si užijete ranní běh, odpolední piknik i romantické západy slunce s dechberoucím výhledem na Prahu. Vinohrady i Žižkov jsou neodmyslitelně spjaty s divadlem a kulturou. Nedaleko najdete nejen slavné Divadlo na Vinohradech, ale i řadu menších a alternativních scén na Žižkově. V létě Vás navíc nadchne unikátní Hvězdné léto pod Žižkovskou věží, kde pod širým nebem vystupují přední čeští herci. V okolí najdete nekonečné množství kaváren, restaurací i vináren. Večery zde tedy mohou patřit nejen kulturním zážitkům, ale i skvělé gastronomii. Tahle lokalita má prostě svou jedinečnou atmosféru, která vás pohltí. Dopravní dostupnost je excelentní – metro A (Flora), tramvaje i autobusy jsou jen 5 minut chůze od domu. Ať už míříte na obchodní schůzku, za kulturou, do centra, nebo jen na víkendový brunch, vždy se spolehnete na rychlé a pohodlné spojení, které si zamilujete. Pokud dbáte o zdravý životní styl, fitness a wellness centra v okolí Vám pomohou načerpat energii na každý den. Jen pár kroků od domu stojí OC Atrium Flora – nákupní a společenské centrum s kavárnami, restauracemi, multikinem i fitness centrem. Pro rychlé každodenní nákupy poslouží supermarket Albert, pro gurmány pak Delmart s delikatesami. Nabízená nemovitost se nachází v udržovaném domě se stabilním společenstvím vlastníků, kde o společné prostory pečují s důrazem na kultivované prostředí a s respektem k soukromí. Byt samotný je velice prostorný a vzdušný, před rekonstrukcí, a čeká na to, aby se stal odrazem Vašeho jedinečného osobního stylu. Můžete zde realizovat své představy – od moderní elegance až po nadčasovou klasiku, a vytvořit si tak domov, který bude opravdu jen Váš. Tato nemovitost představuje příležitost bydlet v místě, které kombinuje vyhledávanou adresu, perfektní dopravní dostupnost , blízkost přírody i kultury – to vše na rozhraní dvou z nejžádanějších pražských čtvrtí. Přijďte si vychutnat její atmosféru osobně a přesvědčit se sami, proč je tento byt tak výjimečný.


