Prodej bytu, 2+1, 62 m²
Prodej bytu 2+1/L, panel, OV, ul. Pod Strání, Praha 10 - Strašnice
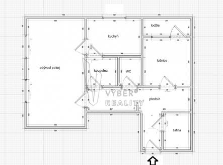
Prodej bytu v oblíbené lokalitě Prahy 10 – Strašnice, ul. Pod Strání - jen pár kroků od stanice metra Skalka. Byt se nachází v 5. patře a je určený ke kompletní rekonstrukci, což nabízí skvělou možnost upravit si dispozici i vybavení přesně podle vlastních představ. V bytě je prostorná šatna s dostatkem úložného prostoru, ložnice se zasklenou lodžií orientovaná na severní stranu, stejně tak i kuchyň. Obývací pokoj je orientován na západ s výhledem na zatravněnou plochu mezi domy a dětské hřiště. Jádro je umakartové, koupelna se sprchovým koutem a umyvadlem, WC je samostatné. Dům prošel revitalizací - zateplení, opravené společné prostory, zvonky, aj. Plocha bytu 57 m2 + 3 m2 lodžie + 2 m2 sklep. V bezprostředním okolí se nachází zatravněné plochy, dětská hřiště a příjemné prostředí vhodné pro rodiny i jednotlivce. Dopravní spojení metrem, autobusem nebo je možné využít rovněž nedalekou železniční stanici. Lokalita nabízí veškerou občanskou vybavenost – základní a mateřskou školu, polikliniku, obchody a služby. Přímo u metra najdete supermarket TESCO, JYSK a další prodejny.


