Prodej bytu, 2+1, 92 m²
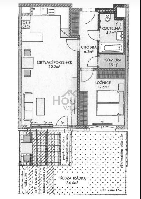
Prodej bytu 2+1, 57,3 m2 s předzahrádkou 34,4,m2, Praha 6 - Ruzyně.
Nabízíme Vám postoupení družstevního bytu 2+1 o výměře 57,3 m2 s předzahrádkou 34,4 m2 ve 1. nadzemním podlaží cihlové novostavby moderní Rezidenci U Šárky, Stočesova ul., Praha 6 - Ruzyně. K bytu náleží garážové stání a sklep nacházející se v suterénu domu. Částka za postoupení je 5.400.000,- Kč. Zbývající anuita je ve výši 6.000.000,- Kč. Celková cena 11.400.000,- Kč. Vzhledem k tomu, že se jedná o družstevní byt, cenu splácíte formou nájmu. Neprokazujete výši příjmu, nepotřebujete hypoteční úvěr a byt je možné převést do osobního vlastnictví kdykoli v průběhu splacení anuity. Anuitu můžete samozřejmě také kdykoli doplatit a byt si převést do osobního vlastnictví. Vzhledem k aktuálnímu navýšení úrokových sazeb na hypotečním trhu, nabízí anuitní splácení nemovitosti výhodnější financování. (Sazba je 4,85% s fixací na 5 let). Byt je v současné době lukrativně pronajat. Byt je orientovaný na východ s výhledem do zeleně. V docházkové vzdálenosti je mnoho možností k relaxaci a sportu - přírodní rezervace Divoká Šárka a Obora Hvězda. Výborné dopravní spojení do města, 3 min. na MHD, 12 min. metro "A", zast. Nádraží Veleslavín, na Letiště Václava Havla Praha jen 9 min. Atraktivní bydlení doplňuje skvělá poloha domu, v přímé blízkosti se nachází veškerá občanská vybavenost včetně škol, školek, lékařů, obchodů a restaurací - jen 5 min, v blízké vzdálenosti je OC Šestka. Doporučujeme.


