Prodej bytu, 2+1, 48 m²
Prodej bytu 2+1, 48m², Praha 8, Libeň
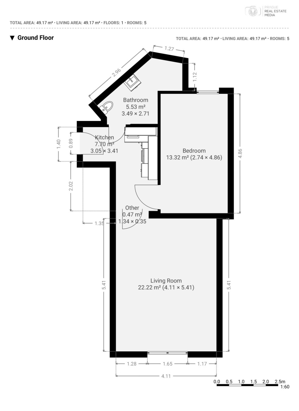
Nabízíme na prodej byt o dispozici 2+1 a velikosti 48 m² na Praze 8 - Libeň. Byt je součástí cihlového domu, prošel kompletní rekonstrukcí a nabízí moderní a komfortní bydlení Dispozice bytu tvoří předsíň, samostatný kuchyňský kout, koupelna s WC, ložnice orientovaná do vnitrobloku a obývací pokoj s okny do ulice. Dům má udržované společné prostory a menší vnitřní dvůr, který je k dispozici pro obyvatele domu. Rekonstrukce zahrnuje: • kompletní výměnu elektroinstalace • novou kuchyňskou linku se spotřebiči • kompletní rekonstrukci koupelny a samostatného WC • nový bojler na ohřev vody • nové dřevěné podlahy Možná výměna za Váš byt v Praze a okolí. Součástí prodeje je také možnost uzavření management contractu – zajišťujeme kompletní rental management pro klienty, kteří hledají investiční nemovitost a chtějí dosáhnout co nejvyššího výnosu z pronájmu. Pokud vás byt zaujal, neváhejte nás kontaktovat, nejlépe telefonicky!


