Prodej bytu, 1+kk, 46 m²
Prodej bytu 1+kk 46 m²
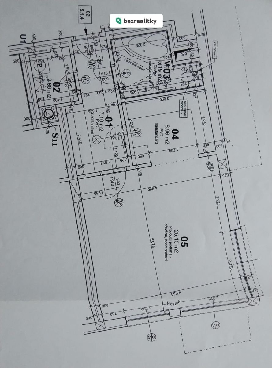
Nabízíme k prodeji velmi pěkný a prostorný byt 1+kk, 46 m² v osobním vlastnictví. Byt se nachází v klidné lokalitě v bezprostřední blízkosti přírodního parku Okrouhlík a zároveň v docházkové vzdálenosti cca 5 minut od metra Ládví – ideální kombinace přírody a skvělé dopravní dostupnosti. Byt je umístěn v přízemí moderního cihlového domu z roku 2005. Díky velkým oknům je velmi světlý a působí vzdušným dojmem. Dispozice nabízí možnost rozdělení bytu na 2+kk. Součástí bytu je kuchyňská linka se spotřebiči (lednice, mikrovlnná trouba, horkovzdušná trouba, elektrický sporák, digestoř). V obytné části je dřevěná podlaha, v kuchyni a na chodbě lino. Koupelna je vybavena vanou a WC. Velkou výhodou je dostatek úložných prostor – na chodbě se nachází prostorné skříně. K bytu náleží také komora s plynovým kotlem a pračkou a dále prostorný sklep, který je umístěn přímo před vstupem do bytu. Byt je vybaven kvalitními bezpečnostními dveřmi, k dispozici je kabelová televize i internet. Parkování je bezproblémové – před domem je dostatek parkovacích míst. Byt je nezařízený, čerstvě vymalovaný a ihned k nastěhování – ideální jak pro vlastní bydlení, tak i jako investice k pronájmu. Lokalita Ládví nabízí veškerou občanskou vybavenost: v blízkosti se nachází obchodní dům Ládví, Kaufland, restaurace, kavárny i další služby. Skvělá příležitost pro ty, kteří hledají klidné bydlení s výbornou dostupností do centra města. Tato nemovitost je určena výhradně přímým zájemcům o koupi. Na inzerát můžete také reagovat přímo na webu Bezrealitky.


