Prodej - nájemní dům, 736 m²
Prodej bytového domu v ulici Na Neklance, Praha 5 - Smíchov
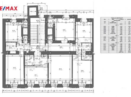
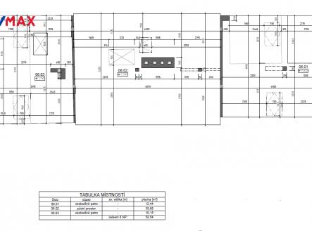
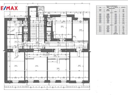
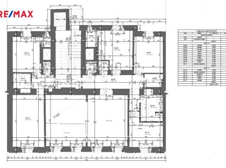
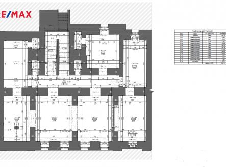
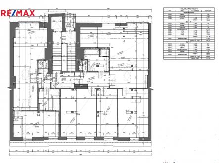
Exkluzivně nabízíme k prodeji bytový dům na atraktivním místě v klidné ulici na Smíchově s vlastním parkováním ve dvoře, a to až pro 10 automobilů. Dům prošel za posledních cca 15 let důkladnou rekonstrukcí, včetně výstavby výtahu, a nyní je ve výborném stavu. V domě je celkem 11 bytových jednotek - 5 × 2+kk, 3 × 2+1, 2 × 4kk a 1 × 4+1 (o celkové podlahové ploše všech bytů 736,4 m2) + v 1.PP zrekonstruované sklepní prostory o výměře 145,13 m2 + v 1.NP sklad a komora + v mezipatrech společné balkóny. Výměra pozemku (zastavěná plocha + parking ve dvoře) je 535 m2. Dům je plně obsazený se stabilním příjmem z dlouhodobých nájemních smluv (pouze dvě malé bytové jednotky mají smlouvu na dobu neurčitou). Každá bytová jednotka má vlastní vytápění. Lokalita je velmi dobře dopravně dostupná, blízko domu se nachází tramvajová zastávka a stanice metra linky B – Radlická. V ulici a na protějším parkovišti je další případné parkování na modré zóně. Přírodní parky a zeleně jsou také v docházkové vzdálenosti, a to i krásným výhledem z vyhlídkového místa a Přírodní památka Ctirad z Dívčích Hradů. Dům je ideální volbou pro investory, kteří hledají nemovitost, na již nyní žádaném místě s jistým potenciálem dalšího vzrůstu atraktivity této lokality. Prodávající si vyhrazuje právo vybrat kupujícího na základě jím zvolených kritérií.


