Prodej bytu, 3+kk, 53 m²
Prodej byt 3 + kk, 53㎡|Hlavní město Praha, Praha, Praha 3, Žižkov, Buková 2554/6, 13000
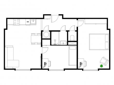
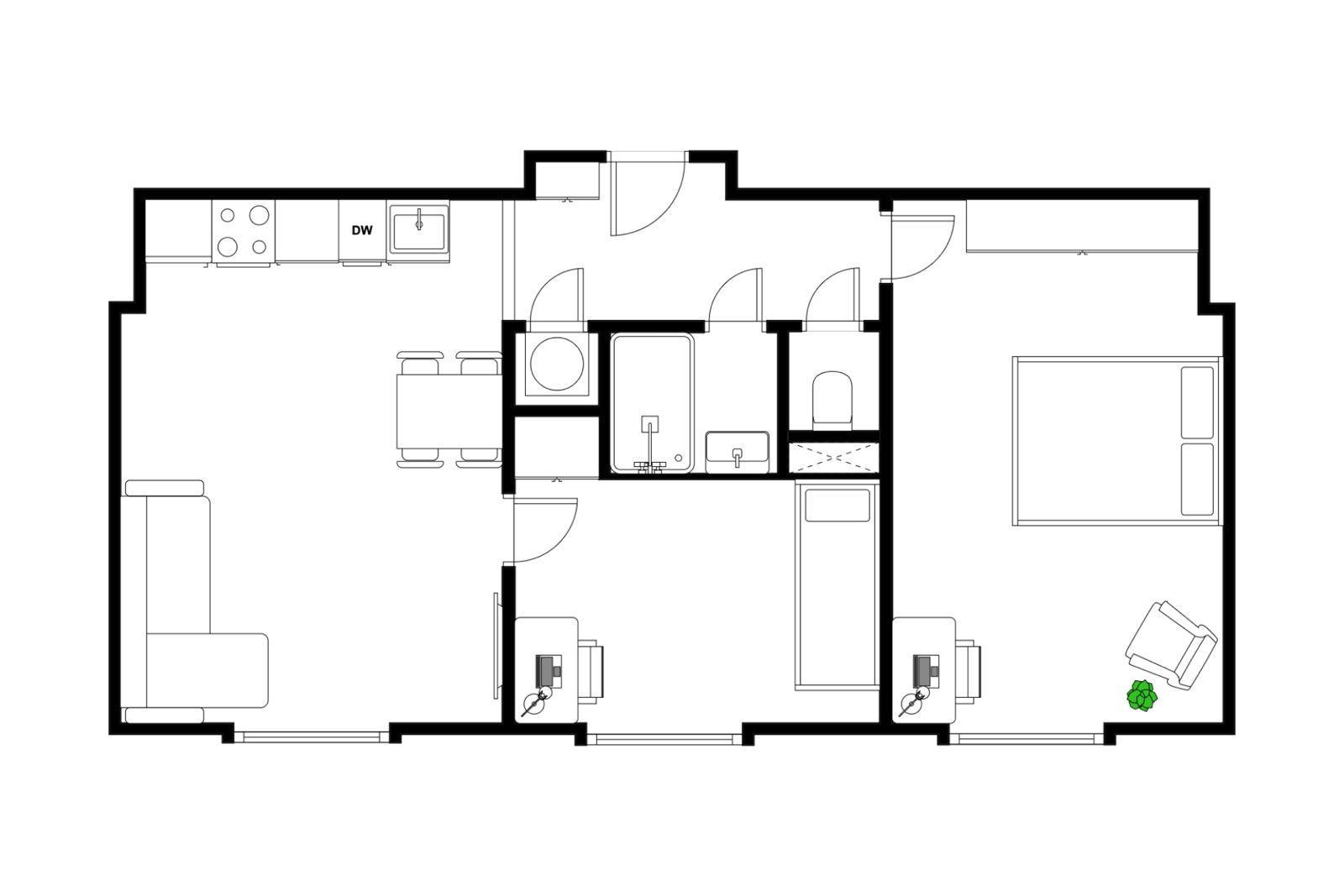
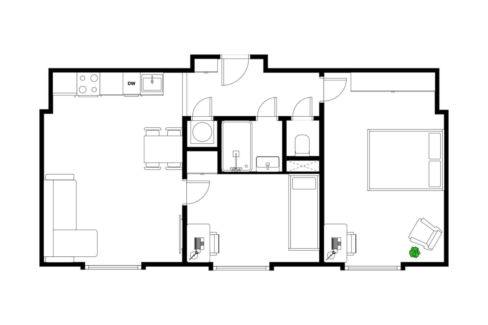
Přímý majitel nabízí k prodeji světlý byt 3+kk o celkové ploše 54 m², který se nachází v 3. nadzemním podlaží zrekonstruovaného a zatepleného domu v oblíbené rezidenční lokalitě Prahy 3 – Žižkov, v ulici Bukova. Byt je situován v klidném prostředí obklopeném zelení, které zajišťuje příjemné a pohodové bydlení. Lokalita nabízí ideální kombinaci městského komfortu a přírody s výbornou dostupností do centra Prahy. Byt je vhodný pro jednotlivce, pár nebo jako investiční příležitost k pronájmu. Žižkov patří mezi vyhledávané části Prahy díky kompletní občanské vybavenosti a skvělé dopravní dostupnosti. Tramvajová zastávka Kněžská louka i autobusová zastávka Habrová se nacházejí jen pár minut chůze od domu a zajišťují rychlé spojení na metro i do centra města. V okolí je k dispozici veškerá infrastruktura – školy, školky, obchody, restaurace, kavárny, knihovna i další služby. Nedaleko se nachází také sportovní a rekreační areál Pražačka. Pro odpočinek i sport jsou ideální blízké parky Židovské pece a Malešický park. Byt právě prošel kompletní a kvalitní rekonstrukcí, která zahrnovala nové rozvody elektřiny, vody a odpadů, nová okna a podlahy, moderní obklady a dlažbu značky Marazzi, koupelnu se sprchovým koutem a sanitou Grohe a také novou kuchyňskou linku se spotřebiči Gorenje, na kterou je poskytována prodloužená záruka pět let. Dispozičně byt nabízí obývací pokoj s kuchyňským koutem, dva samostatné pokoje vhodné jako ložnice a dětský pokoj nebo pracovna, prostornou vstupní chodbu a moderní koupelnu s toaletou. K bytu náleží sklepní kóje o velikosti 2 m². Vytápění je centrální dálkové. Kompletní měsíční poplatky do SVJ vč. fondu oprav činí 4.478 ,- Kč. Byt je prodáván přímo majitelem, bez provize za zprostředkování. Cena zahrnuje kompletní právní servis včetně přípravy kupní smlouvy a advokátní úschovy. V případě zájmu si neváhejte prohlédnout dům pomocí virtuální prohlídky. Pro více informací a domluvení osobní prohlídky nás neváhejte kdykoliv kontaktovat.


