Prodej bytu, 2+kk, 45 m²
Prodej byt 2+kk, 45㎡
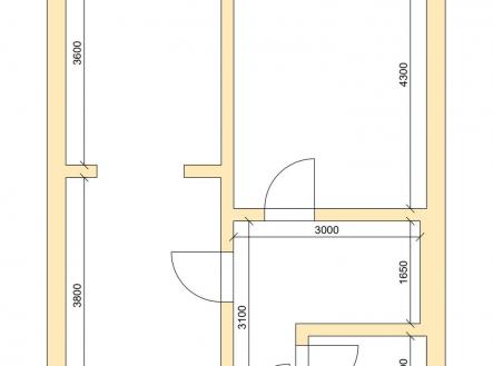
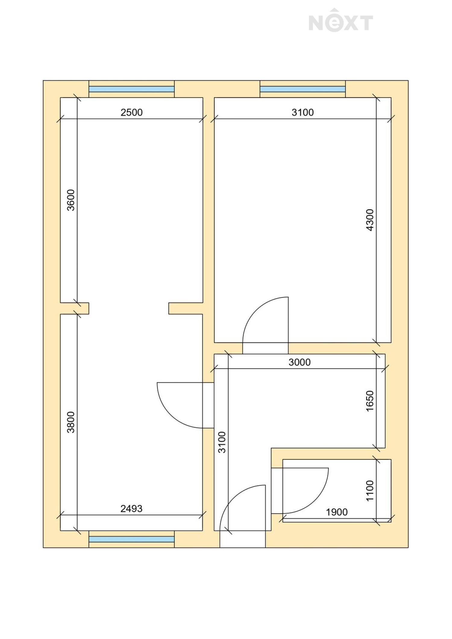
2+kk v srdci Holešovic – byt s potenciálem a fotbalovým výhledem. Hledáte byt, který si můžete přetvořit přesně podle svých představ? Nebo investici, která dává smysl? Pak čtěte dál – tenhle kousek v Holešovicích má rozhodně co nabídnout. Byt 2+kk o velikosti 45 m² je v původním stavu, takže ideální pro rekonstrukci podle vlastního vkusu. Byt se nachází v pavlačovém domě, který má své kouzlo i komunitní atmosféru. Dům je po částečné rekonstrukci a zateplený, takže řešíte hlavně byt, ne starosti kolem něj. Součástí je prostorný sklep, kam se vejde všechno – od kol až po věci, které „se jednou budou hodit“. V koupelně je sprchový kout a podlahy kombinují plovoucí podlahu a dlažbu. Výhled z pavlače je na fotbalový stadion – ideální pro fanoušky, kteří chtějí mít atmosféru zápasu doslova za rohem (samozřejmě bez placení lístku). Lokalita Praha – Holešovice nabízí skvělou dostupnost, kompletní občanskou vybavenost, kavárny, kulturu i zeleň. Čtvrť, která dlouhodobě roste na hodnotě. Byt je jako nepopsaný list – jen čeká, až mu dáte nový příběh. Ozvěte se a přijďte se podívat osobně. V případě zájmu lze nemovitost financovat hypotečním úvěrem prostřednictvím našeho hypotečního centra. Nabízíme moderní financování až na 30 let, bez ohledu na věk a nutnost prokazování příjmů či předkládání daňového přiznání (pro podnikatele). Neváhejte se zeptat na možnosti financování – rádi vám pomůžeme najít to nejlepší řešení. Pro komunikaci uvádějte evidenční číslo zakázky N115957.


