Prodej bytu, 2+kk, 58 m²
Prodej BJ 2+kk s balkónem a parkovacím stáním
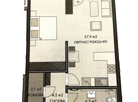
Nabízíme k prodeji moderní bytovou jednotku 2+kk s balkónem, situovanou ve 4. nadzemním podlaží novostavby v atraktivním projektu Malý Háj. Byt má jihozápadní orientaci, což zajišťuje dostatek přirozeného světla během celého dne. Celková plocha činí 58 m², užitná plocha pak 52 m². K nemovitosti náleží parkovací stání v halové garáži, což je v dnešní době velkou výhodou pro komfortní bydlení. Nemovitost se nachází v městské části Dolní Měcholupy, která se vyznačuje rozvinutou infrastrukturou a množstvím nově vzniklých parků, skvělých pro odpočinek a aktivní volnočasové aktivity. Blízkost MHD a snadná dostupnost do centra Prahy činí tuto lokalitu velmi žádanou mezi investory i nájemníky. Byt je aktuálně v družstevním vlastnictví se splacenou anuitou, což umožňuje bezproblémový převod do osobního vlastnictví. Dlouhodobě je pronajatý spolehlivým nájemníkům, což zajišťuje stabilní a tržní nájemné, poskytující potenciálním investorům atraktivní výnos a bezpečnou návratnost investice. Tato nemovitost představuje výhodnou investiční příležitost v oblasti, která má stále vzrůstající hodnotu. Díky velmi dobrému stavu objektu a příjemnému bydlení zde můžete nejen zhodnocovat svou investici, ale také nabídnout byt, který splňuje vysoké standardy a očekávání nájemníků. V případě zájmu o prohlídku nás neváhejte kontaktovat.


