Prodej bytu, jiný, 114 m²
Prodej atypického bytu, 114 m², Praha, ul. Za Pohořelcem
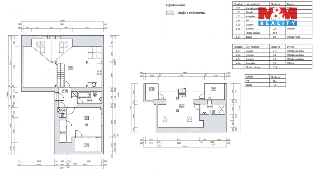
Nabízíme k prodeji výjimečný a atypický podkrovní byt 2+kk o 114 m² s terasou 5,8 m², umístěný v 5. NP domu s výtahem v prestižní pražské lokalitě Za Pohořelcem. Už při vstupu zaujme prostorný obývací pokoj s kuchyní, který vytváří příjemné a reprezentativní prostředí pro každodenní život i setkávání. Dispozice dále zahrnuje koupelnu s vanou a WC, samostatný pokoj se vstupem na terasu, šatnu a další WC. Z obývací části vede designové schodiště do podkrovní ložnice, kde se nachází druhá koupelna se sprchou, WC a dvě šatny, což podtrhuje praktičnost a soukromí tohoto bytu. K bytu náleží podíl na rozlehlé zahradě o 530 m², která poskytuje klidné místo – výhoda, která je v Praze spíše vzácností. Nemovitost je vhodná pro ty, kteří hledají prostor, soukromí a osobitou atmosféru podkrovního bydlení v prestižní lokalitě. Skvělá dopravní dostupnost – tramvajové zastávky Pohořelec a Malovanka jsou pár minut chůze, rychlé spojení na metro A . Do centra se snadno dostanete i autem.


