Pronájem bytu, 4+1, 174 m²
Praha, pronájem nezařízený byt 4+1 (174m2), Staré Město, ul. Na Perštýně
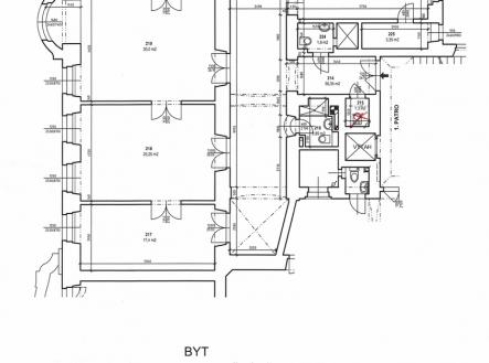
Nabízíme k pronájmu nezařízený byt 4+1, o rozloze 174 m2, který se nachází ve druhém nadzemním podlaží pěkného historického domu s výtahem v lukrativní oblasti Starého Města. Dispozice: prostorná vstupní hala, 4 samostatné pokoje, oddělená kuchyně s moderní plně vybavenou kuchyňkou linkou, 2 koupelny ( jedna s vanou a toaletou, druhá se sprchovým koutem a toaletou), další toaleta je zvlášť. Vysoké stropy a dřevěné parkety - to vše podtrhuje historický avšak moderní ráz tohoto bydlení. Dům se nachází jen pár kroků od nákupního centra Quadrio a Máj, zároveň několik minut pěšky do historického centra města. Perfektní občanská vybavenost: v okolí jsou krásné originální kavárny, obchody, restaurace, kina, divadla, atd.). Praha 1 - Staré Město je atraktivní lokalita v samém srdci Prahy s vynikající dopravní dostupností - stanice metra a tramvají Národní Třída 150m od domu. Půvabná část Prahy, jež je vhodná pro klienty, kteří vyhledávají jedinečnou atmosféru starobylých částí města. Některé fotografie použity z podobného bytu. K dispozici od 3.2.2026


