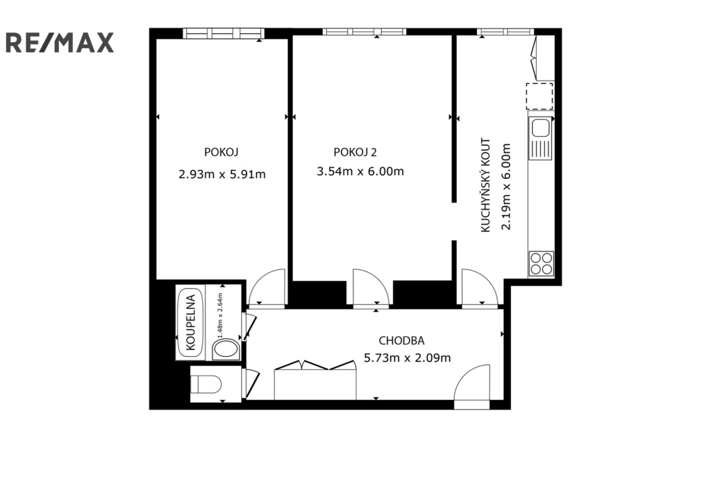
Pronájem bytu, 2+1, 62 m²
Pěkný byt 2+1 k pronájmu nám. Jiřího z Lobkovic
Nabízíme k pronájmu světlý byt 2+1 v oblíbené části Vinohrad. Klidné bydlení s okny na východ do vnitrobloku, tj. na opačnou stranu, než je ulice, zajišťují tiché prostředí a příjemné ranní světlo. Byt se nachází na náměstí Jiřího z Lobkovic 2458/17 v Praze 3, ve 4. patře udržovaného domu s výtahem. Celková plocha bytu je 62,5 m² a poskytuje dostatek prostoru pro pohodlné bydlení. Po vstupu do bytu je před Vámi prostorná předsíň se šatními skříněmi, ze které se vstupuje do kuchyně a do prvního neprůchozího pokoje. Druhý neprůchozí pokoj má samostatný vstup také z předsíně. Kuchyň je prakticky vybavena lednicí s mrazákem, sporákem, myčkou a kuchyňskou linkou s přípravou na pračku a úložným prostorem. Koupelna je vybavena menší vanou se sprchovací zástěnou a velkým žebříkem na sušení ručníků. Toaleta je samostatná. V obytných pokojích jsou renovované parketové podlahy, které bytu dodávají příjemný charakter. Dispozice bytu je praktická a vhodná pro pár i rodinu s dětmi. Výhodou je blízkost základní i mateřské školy přímo na náměstí. Součástí bydlení je možnost využívat uzavřenou zahradu a dětské hřiště s pískovištěm a prolézačkami, které se nachází přímo pod okny bytu. V okolí jsou k dispozici také volnočasové kluby a sportoviště včetně tenisové školy při místní základní škole. Lokalita nabízí výbornou dopravní dostupnost i kompletní občanskou vybavenost. V docházkové vzdálenosti se je obchodní centrum Flora s obchody a službami pro každodenní potřeby. Měsíční nájemné - 24 800 Kč. Zálohy na služby pro dvě osoby - 4 500 Kč měsíčně Elektřina se převádí na nájemce. Vratná kauce odpovídá dvěma měsíčním nájmům - 2 x 24 800 Kč Rezervační poplatek ve výši jednoho nájmu (24 800 Kč) se po podpisu nájemní smlouvy započítává na první měsíc nájmu. Nájemce neplatí provizi RK V případě zájmu o prohlídku nás neváhejte kontaktovat, rádi vám byt osobně ukážeme.


