Prodej bytu, 2+kk, 67 m²
Nový slunný byt 2+kk 56 m² s lodžií 10,6 m², velkorysé parkovací stání a nadstandartní sklep
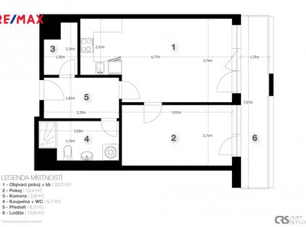
Byt je ideální volbou pro ty, kteří hledají moderní městské bydlení — domov, kde můžete po práci vypnout, ale přitom zůstat v dosahu města. Exkluzivně nabízíme k prodeji nový byt 2+kk o podlahové ploše 56 m² s prostornou lodžií 10,6 m², situovanou do zeleného srdce nově vznikající rezidenční čtvrti Tesla Hloubětín. Byt se nachází ve 2. patře (3. NP) a spojuje vše, co si od současného bydlení přejete — funkční dispozici, elegantní styl a pocit bezpečí. KAŽDÝ DETAIL JE PROMYŠLENÝ Dominantou bytu je obývací pokoj s kuchyňským koutem o velikosti 23,2 m² s pohodlným vstupem do lodžie. Velkoformátová okna sahající od stropu po zem zajištují světlo po celý den a propojují byt s klidným vnitroblokem plným zeleně. Rovněž z ložnice (13,4 m²) je přímý vstup na lodžii, která je dostatečně velká na vytvoření zelené stěny nebo mini zahrádky. Moderní kuchyňská linka je vybavena značkovými spotřebiči Electrolux a Liebherr – myčka, mikrovlnná trouba, sklokeramická deska i kombinovaná lednice s mrazákem se postará o to, abyste se mohli bez starostí nastěhovat. Součástí vstupní haly je velká vestavěná skříň, která má dostatek prostoru pro uskladnění vašich věcí. Praktickou součástí bytu je komora o velikosti (2,8 m²). Koupelna se sprchou a s WC o velikosti (5,7 m²) je prostorná a připravená na instalaci pračky a sušičky a dalšího příslušenství. K bytu náleží velkorysé parkovací stání vhodné i pro SUV za cenu 800.000,- Kč Hned za parkovacím stání se nachází nadstandardně velký sklep o výměře 8,7 m² za cenu 300.000,- Kč. Parkovací stání a sklep není součástí ceny bytu. Projekt TESLA Hloubětín vzniká na místě původního areálu Tesly a proměňuje se v jednu z nejzelenějších moderních čtvrtí v Praze. Najdete zde rozsáhlé vnitrobloky, parky, pěší zóny i dětská hřiště. V přízemí domů postupně vznikají obchody, kavárny a služby. Nechybí školka, fitness zóny a příjemné cesty pro běhání či jízdu na kole. SKVĚLÁ DOPRAVNÍ DOSTUPNOST • Metro B – Hloubětín je jen pár minut pěšky • Byt je přímo u tramvajové zastávky Nademlejnská • Rychlé napojení na Pražský okruh a centrum města Tento byt si vás získá hned při první návštěvě. Těším se na vás osobně na prohlídce.


