Pronájem bytu, 2+kk, 51 m²
Nové 2+kk, lodžie, garáž - P6, Stočesova
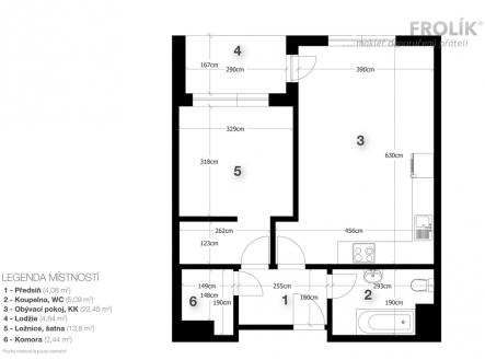
Bydlení v novém je vždycky fajn! Takže jestli si tu novotu chcete užít, přijďte se co nejdříve podívat na tento fajnový byt 2+kk s lodžií, garážovým stáním a sklepem, v projektu "Byty u Šárky", v ulici Stočesova, v Praze 6 - Ruzyni. Najdete ho ve 3. patře novostavby (s výtahem) z roku 2025. Byt má výměru cca 51 m2 + cca 5 m2 lodžii. Je celý otočený na východní stranu, do areálu. Okna jsou plastová s trojskly, takže krásně zvukově těsní. Navíc mají i mikroventilaci a vnitřní žaluzie. Kuchyňská linka je vybavena vestavěnými spotřebiči - lednice s mrazákem, el. trouba, mikrovlnka, myčka, indukční varná deska, digestoř. V chodbě bytu je komora/šatna a v ložnici je oddělený šatní kout s vlastním světlem. V domě je i společná kolárna a kočárkárna. Tu už budete mít v ceně. Kousek od domu je venkovní sportoviště, konečná tram, nedaleko je OC Šestka, o kousek níž do Prahy pak koupaliště Džbán a Divoká Šárka. Garáž a sklep není podmínkou podnájmu, ale pokud si je vezmete, budou dohromady za 1.000 Kč/měs. + služby 136 Kč/měs. Projekt je postaven jako družstevní bydlení, jedná se tedy o podnájem. Kromě podnájemného budete platit zálohy na služby 4.736 Kč/měs.. Elektřina bude převedena na Vás. Podnájemné + služby se hradí na 1 měsíc dopředu, jistota je 2x podnájemné, provize 1x podnájemné. Byt je ihned k dispozici. PENB třída B.


