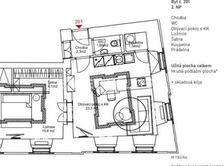
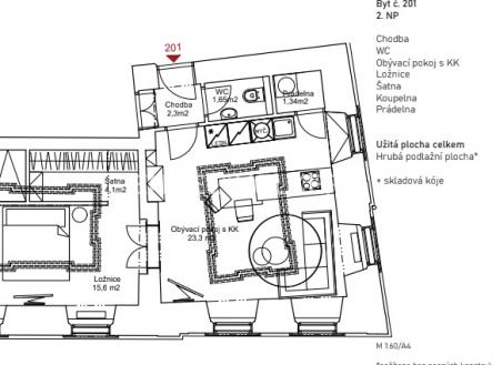
Pronájem bytu, 2+kk, 51 m²
Nadstandardní 2+kk v rezidenci Nosticova
Ihned k pronájmu je připravený byt 2+kk v druhém patře rezidence Nosticova. Byt je o praktické dispozici 2+kk se spojenou obývací částí a kuchyní a oddělenou ložnicí a šatnou. Kvalitní kuchyně se všemi spotřebiči, koupelna se sprchovým koutem. Rezidence Nosticova je po kompletní a kvalitní rekonstrukci. Dům je v klidné ulici na Malé Straně. Byt je možné si pronajmout také jako kancelář. Zájemce je srozuměn s provizi realitní kanceláří ve výši jednoho měsíčního nájmu + DPH.


