Prodej - dům/vila, 145 m²
Nabízíme k prodeji řadový rodinný dům o dispozici 5+2 na adrese Březová, Praha 8 – Kobylisy.
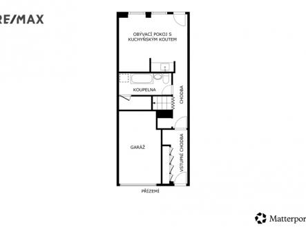
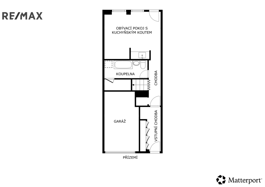
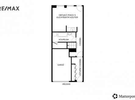
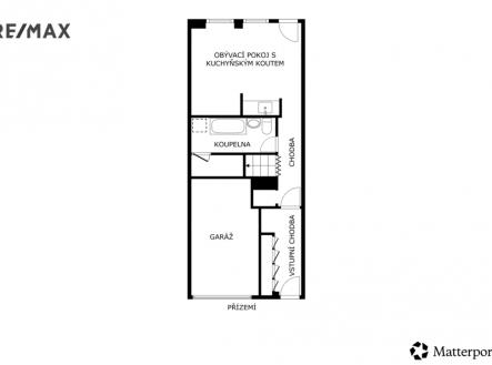
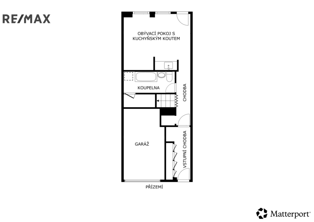
Nabízíme k prodeji řadový rodinný dům o dispozici 5+2 na adrese Březová, Praha 8 – Kobylisy. Dům je vhodný i pro dvougenerační bydlení a nabízí klidné rodinné zázemí v jedné z nejvyhledávanějších lokalit Prahy 8. Dispozice domu: Přízemí: Garáž (13,1 m²), předsíň (6 m²), chodba (3,6 m²), koupelna s WC (5,2 m²), úložný prostor (3,1 m²) a ateliér s kuchyní (19,1 m²) se vstupem na zadní zahradu o velikosti 32 m²; přední část pozemku má 24 m². 1. patro: Prostorný obývací pokoj (27,5 m²), samostatná kuchyň (10,5 m²), jídelna (10,1 m²) a schodiště do 2. patra. 2. patro: Ložnice (15,4 m²), dva pokoje (každý 9,2 m²), chodba (9,7 m²), koupelna s vanou (2,2 m²), samostatné WC (1,4 m²) a půda (54,7 m²).Celková obytná plocha: 145 m² (včetně garáže). Parkování je zajištěno garáží a druhým parkovacím stáním na pozemku. Technické informace Dům je napojen na vodu, kanalizaci, elektřinu i plyn. Vytápění a ohřev TUV zajišťuje kondenzační plynový kotel. Konstrukce a výstavba Rezidenční zástavba v této části Kobylis vznikala kolem roku 1970 - 1980. Konstrukce a výstavba: Rezidenční zástavba vznikala v letech 1970–1980. Typické konstrukce v lokalitě: obvodové stěny: tvárnicové zdivo stropy: železobetonové prefabrikované dílce příčky: lehké (pórobeton, duté cihly) Lokalita – Kobylisy, Praha 8 Březová ulice nabízí klidné rodinné bydlení s kompletní občanskou vybaveností v docházkové vzdálenosti – obchody, restaurace, školy, školky, služby, zeleň. Výborná dopravní dostupnost zajišťuje pohodlné spojení po celé Praze. • Tramvajová zastávka Sídliště Ďáblice – 5 minut chůze. • Autobusová zastávka Ďáblický hřbitov – jen 3 minuty, autobus jede na metro C – Ládví cca 5 minut. • Metro C – Ládví v docházkové vzdálenosti. • Rychlé napojení autem na Libereckou a Městský okruh. Prodávající si vyhrazuje právo vybrat kupujícího na základě jím zvolených kritérií.


