Pronájem - dům/vila, 243 m²
Luxusní vila k pronájmu v prestižní rezidenci Villas Šárka – Praha 6, Nebušice
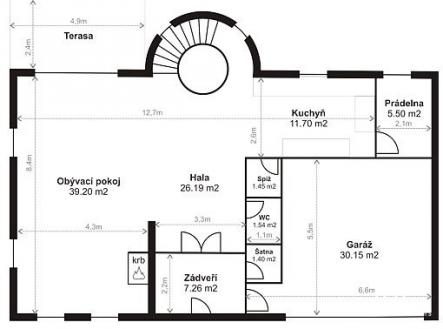
K pronájmu nabízíme exkluzivní vilu č. 2 o celkové obytné ploše 243 m2, která se nachází v prestižním a uzavřeném rezidenčním areálu Villas Šárka v Praze 6 – Nebušicích. Tato reprezentativní nemovitost nabízí maximální soukromí, klidné bydlení v zeleni a zároveň vynikající dostupnost do centra města i na letiště. V přízemí domu se nachází prostorný obývací pokoj s krbem a přímým vstupem na terasu, jídelní část propojená s plně vybavenou kuchyní, dále technická místnost, toaleta a šatna. V horním patře jsou čtyři ložnice, z nichž dvě disponují vlastní koupelnou, a další samostatná koupelna s rohovou vanou. Dům je vybaven podlahovým vytápěním, klimatizací, zabezpečovacím systémem, videotelefonem i přípravou pro vysokorychlostní internet. Součástí vily je krásná soukromá zahrada o výměře přibližně 380 m2 se zavlažovacím systémem a vyhřívaným bazénem s protiproudem, podvodním osvětlením a solární plachtou. K dispozici je také garáž pro dva vozy s dálkově ovládanými vraty. Velkou přidanou hodnotou je rozsah služeb, které pronajímatel zajišťuje a díky nimž se z bydlení stává skutečně bezstarostný zážitek. V ceně služeb je pravidelná profesionální údržba zahrady, péče o bazén včetně čištění a kontroly technologií, svoz odpadu a správa společných částí areálu. Samozřejmostí je také servis bezpečnostních systémů a možnost technické podpory při správě domu. Tyto služby zaručují, že nájemce může využívat komfort vily naplno, bez nutnosti starat se o každodenní provozní záležitosti. Rezidenční areál se nachází v těsné blízkosti International School of Prague a nabízí kompletní občanskou vybavenost včetně obchodů, škol, zdravotního střediska a sportovišť. V docházkové vzdálenosti je také přírodní rezervace Divoká Šárka, ideální pro volnočasové aktivity. Měsíční nájem činí 110 000 Kč plus měsíční poplatky ve výši přibližně 12 000 Kč a zálohy na energie kolem 16 000 Kč. Požadována je vratná kauce ve výši dvouměsíčního nájmu. Pokud hledáte luxusní a pohodlné bydlení s profesionálním servisem v jedné z nejžádanějších částí Prahy, neváhejte nás kontaktovat pro více informací nebo sjednání osobní prohlídky. For foreign clients we provide full service in English, including viewings, contracts and complete assistance throughout the rental process. Feel free to contact us for more details or to arrange a private viewing.


