Pronájem bytu, 3+kk, 288 m²
Luxusní loftový mezonet se střešní terasou a panoramatickými výhledy
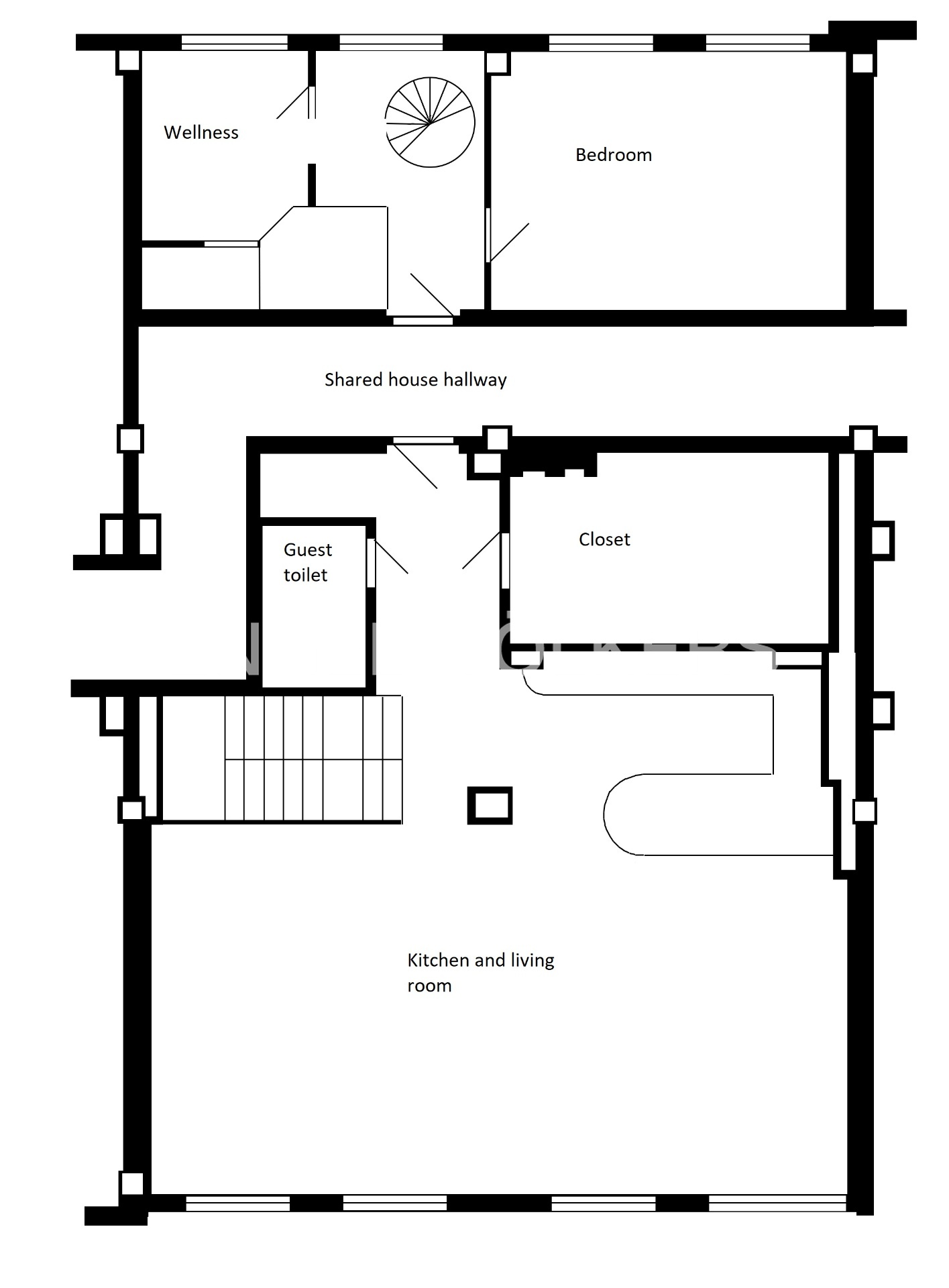
Luxusní loftový mezonet v 6. - 7. patře se střešní terasou a panoramatickým výhledem na údolí Vltavy, Vyšehradu, Dívčích Hradů a Pražského hradu. Loft se nachází v industriální budově a je situován v blízkosti komerčního centra Anděl, nedaleko klidného prostředí Prokopského údolí. Nemovitost je možné pronajmout i za účelem využití jako kanceláře. Spodní úroveň loftu tvoří otevřený obývací pokoj s velkoplošnými okny a plně vybavenou kvalitní kuchyní (pračka a sušička je vestavěná v kuchyňské lince), šatna a toaleta pro hosty, ložnice a sauna. V horním patře se nachází jedna ložnice, otevřená pracovna (galerie), koupelna a otevřená šatna s vestavěnými skříněmi. Loft se pronajímá nezařízený, pouze včetně vestavěného nábytku (TV součást pronájmu, velký barevný obraz nikoliv). Z galerie je po točitých schodech přístupná střešní terasa. Byt je klimatizován. Luxusní materiály a provedení, velkoformátová okna, dřevěné podlahy, bezpečnostní vstupní dveře, vestavěné skříně a úložné prostory, vnitřní elektrické rolety. K bytu náleží 1 garážové parkovací stání a je zahrnuto v ceně nájmu. Další vůz může příležitostně parkovat před garáží. Kauce je stanovena ve výši tří měsíčních nájmů. Provize realitní kanceláři 1 měsíční nájem + DPH.


