Pronájem bytu, 2+1, 58 m²
Krásný prostorný byt 2+1 (58 m²) v centru Prahy 1 – Hybernská ulice
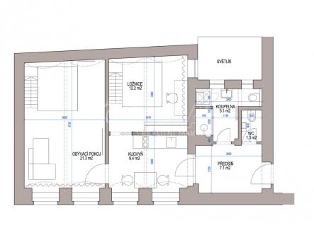
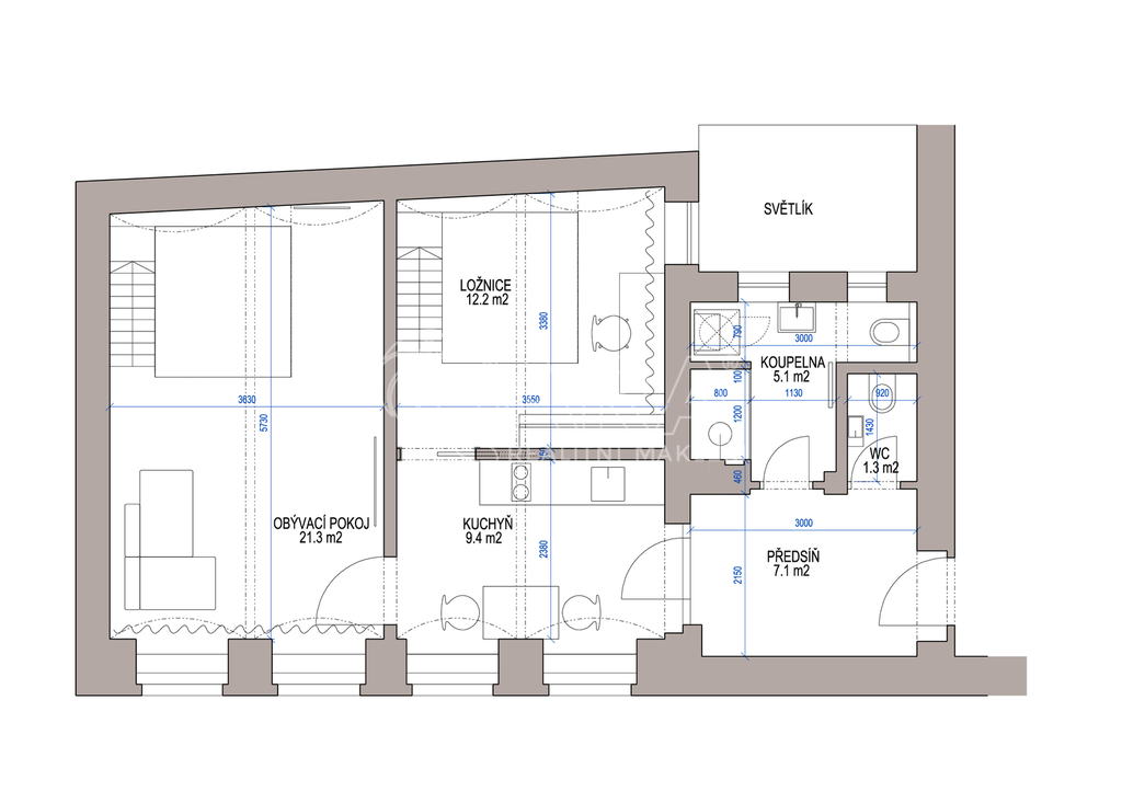
Nabízíme k pronájmu úžasný světlý a prostorný byt o dispozici 2+1 a celkové ploše 85 m², který se nachází v hodně zvýšeném přízemí činžovního domu v samém srdci Prahy, v Hybernské ulici, přímo naproti Masarykovu nádraží. Byt je orientovaný do klidného vnitrobloku, takže navzdory poloze v centru města nabízí příjemný klid. Dispozice: Z předsíně vedou dveře na samostatnou toaletu, do koupelny jejíž součástí je druhá toaleta, sprchový kout, umyvadlo a pračka se sušičkou a do kuchyně. Z kuchyně jsou pak dveře do obou pokojů. Kuchyň je vybavena myčkou, troubou a varnou deskou. Ve větším pokoji je spací patro a šatní skříň. V menším pokoji je také spací patro a psací stůl. Byt se pronajímá, vyjma uvedeného, nezařízený. V bytě je etážové vytápění. V blízkosti domu je stanice metra B „Náměstí Republiky“, tramvajové zastávky, Masarykovo nádraží a obchodního centra Palladium. Náklady: Nájemné: 25 000 Kč / měsíc Zálohy: 2 000 Kč (voda, osvětlení a úklid společných prostor, svoz odpadu) Elektřina a plyn se přepisuje na nájemce Kauce: 50 000 Kč Provize RK: 25 000 Kč


