Prodej - dům/vila, 230 m²
Krásný a prostorný dům 5+1 s bazénem a terasou, Praha 5 - Slivenec
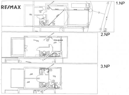
Exkluzivně nabízíme krásný mimořádně úsporný (PENB A) rodinný dům nacházející se na jedinečném místě, ve zcela klidné slepé ulici, v rezidenční a žádané lokalitě Praha 5 – Slivenec. Zděný dům s celkovou užitnou plochou 230 m2 má tři podlaží a obsahuje skvěle propojený obytný prostor (kuchyň se vstupem na terasu a obývací pokoj s navazující velkou zimní zahradou, tři ložnice, tři šatny, koupelnu s WC, samostatné WC, technickou místnost a sklad. Další koupelnu lze realizovat přímo u hlavní ložnice rodičů. Pozemek je ve dvou úrovních, kdy v dolní části můžete parkovat další dva vozy před garáží. V horní části dokonale udržované osvětlené zahrady lze relaxovat ve velkém bazénu (7 m x 3 m s posuvným krytem) nebo v zastřešeném posezení s krbem. Zahrada má automatickou závlahu s napojením na vlastní studnu. Na pozemku se dále nachází zahradní domek a místnost pro uskladnění sekačky na trávu. Kolaudace zděného domu proběhla v roce 2009 a v loňském roce byl dům rekonstruován – nové podlahové krytiny (dřevěné podlahy Boma a velkoformátová dlažba), podlaha v garáži, plynový kotel Viesmann, umytí fasády párou, bazén má nové čerpadlo a ohřev vody, nový přívod vody do domu. V koupelnách byly použity nadstandardní zařizovací předměty, vč. dlažby a obkladů. Interiér domu je vkusně zařízen nábytkem, který je součástí kupní ceny. Kuchyňská linka je ve vysoké kvalitě se spotřebiči zn. Bosch. Její součástí je i vestavěná vinotéka zn. Siemens. V obývacím pokoji je nová sedačka Madame Windsor. Veškerý nábytek Kare. Dům je také vybaven zabezpečovacím zařízením, vč. kamer, klimatizací a domovním telefonem se vzdáleným ovládáním a velkým trezorem. Tato energeticky nenáročná budova se solárními panely má nízké měsíční náklady. Nedaleko se nachází konečná zastávka tramvaje Slivenec s rychlou dostupností do centra města. Autem je od domu rychlé a skvělé napojení na pražský okruh. V okolí je veškerá občanská vybavenost – výborné nákupní možnosti v nedalekém hypermarketu Kaufland, mateřská škola, základní škola, pošta, poliklinika, dětské hřiště, aquapark Barrandov. Doporučuji prohlídku této výjimečné nemovitosti.


