Pronájem - obchodní prostor, 1 350 m²
Komerční objekt u Jižní Spojky
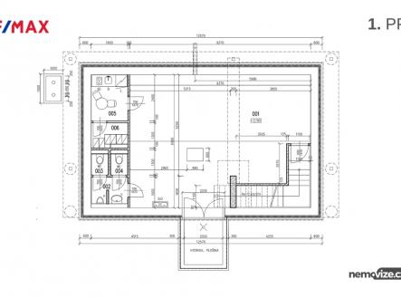
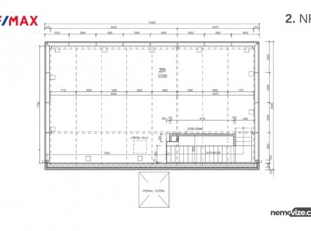
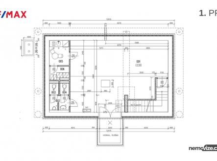
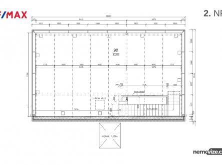
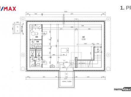
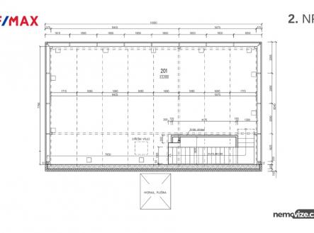
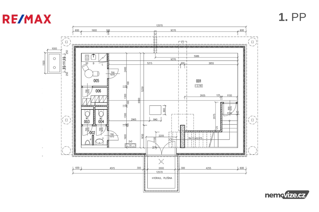
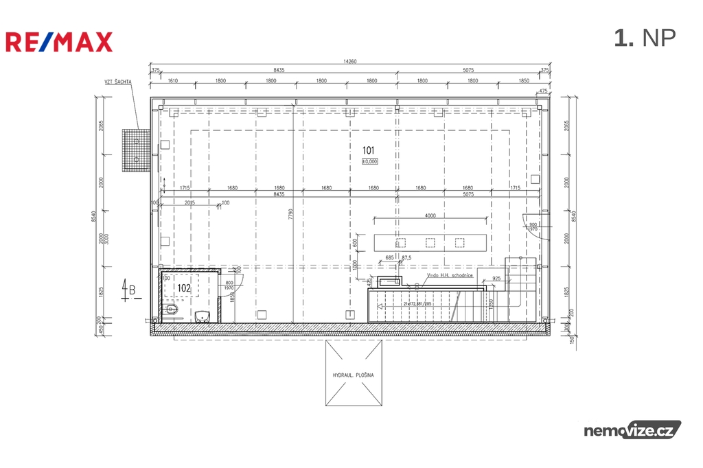
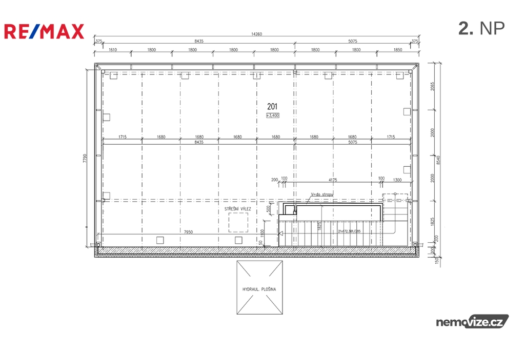
Nájemné: 145.000 Kč + DPH Kauce: ve výši 2 měsíčních nájmů Odměna RE/MAX: jeden měsíční nájem + DPH Nově k pronájmu nabízíme moderní třípodlažní komerční objekt nacházející se ve velmi frekventované lokalitě Prahy 10 – Záběhlice, přímo u Jižní spojky. Součástí je také rozlehlý pozemek o výměře cca 1.000 m², který je k dispozici jako zpevněná plocha. Pozemek lze využít k parkování až cca 30 vozidel nebo jako ostatní manipulační či skladovací plochu. Ideální řešení pro parkování zákazníků i zaměstnanců, případně pro logistické či provozní zázemí ke komerční nemovitosti. Díky skvělé poloze je budova výborně viditelná z hlavního dopravního tahu, má snadný nájezd i výjezd a představuje ideální místo pro jakýkoliv komerční záměr, který potřebuje být na očích a zároveň mít bezproblémovou dopravní dostupnost. K dispozici je také možnost budoucího využití střešní terasy – prostor je na terasu připraven, včetně výlezu. V případě zájmu lze dodělat schodiště. Objekt byl zkolaudován v roce 2022, je zrekonstruovaný, moderní, udržovaný a ve velmi dobrém technickém stavu. Celková užitná plocha budovy činí 344 m² a je rozdělena do tří podlaží. Součástí pronájmu je také rozsáhlá venkovní plocha a parkoviště o velikosti přibližně 1.100 m² s možností parkování až pro 30 vozidel, což je v této části Prahy výrazným benefitem jak pro zaměstnance, tak pro zákazníky. V případě zájmu je možné si k nemovitosti pronajmout také billboard v bezprostřední blízkosti. V podzemním podlaží o výměře 102 m² se aktuálně nachází servisní a skladové zázemí. Toto podlaží je přístupné vnitřním schodištěm a výtahem, který propojuje podzemní podlaží s přízemím, a zároveň je zde možnost zásobování zvenku pomocí nákladní hydraulické plošiny. Přízemí o velikosti 121 m² v současné době slouží jako prodejna, disponuje velkými prosklenými výlohami orientovanými směrem k Jižní spojce a nabízí tak výbornou prezentaci značky nebo služeb. Druhé nadzemní podlaží, rovněž o výměře 121 m², je nyní využíváno jako další prodejní prostor, nicméně celý objekt lze dispozičně upravit dle potřeb nového nájemce. Prostory je možné využít jako showroom, sklad, kanceláře, servisní zázemí nebo je kombinovat podle konkrétního provozu. V budově se nachází kompletní sociální a provozní zázemí, včetně dvou toalet, pisoáru, dvou umyvadel, kuchyňky a zázemí pro personál. Celý objekt je zkolaudován pro menší výrobu, což umožňuje provoz lehké výroby v kombinaci se skladem nebo obchodní činností. Jedná se o velmi atraktivní, moderní a reprezentativní nemovitost na strategickém místě Prahy, která nabízí skvělou viditelnost, výbornou dopravní dostupnost a velkorysé parkování. Objekt je ideální volbou pro firmy hledající funkční a flexibilní komerční prostory s výrazným marketingovým potenciálem přímo u Jižní spojky. Těšíme se na vás osobně!


