Prodej - kanceláře, 572 m²
Kanceláře, obchod s vlastním vstupem, recepcí a výhledem, Nušlova, Bucharova, Praha 13, Stodůlky
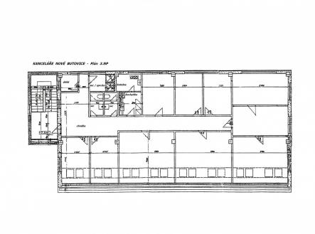
Kanceláře s vlastním vstupem, recepcí a výhledem — Nušlova, Praha 13 – Stodůlky Hledáte prostor, který bude vaší firmě slušet a zároveň dává ekonomický smysl? Tento kancelářský celek o výměře 286,1 m² v Nušlově ulici nabízí vše, co moderní podnikání potřebuje – od vlastního vchodu z ulice, přes reprezentativní recepci, až po flexibilní uspořádání místností. Klíčové přednosti: Absolutně samostatný vstup – vaše značka, vaše identita. Vstupní hala vhodná pro recepci – ideální pro reprezentaci i kontrolovaný přístup. Velký prostor. Flexibilní dispozice – lehké příčky = snadné úpravy dle potřeby nájemce 13 kanceláří různých velikostí – prostory pro vedení, tým, zasedačku i archiv. Vysoká světlost a kruhové výhledové okno – půdní charakter prostoru s přirozeným světlem. Nenápadná, ale dobře dostupná adresa – výborné pro firmy, které potřebují klid a zároveň být po ruce. Vlastní kuchyňka, sklad, úklidová komora, sociální zázemí, sprcha Nízké provozní náklady _ nový plynový kotel Z investičního pohledu: Nízké provozní náklady (cca 135 tis. Kč ročně) Stabilní tržní výnos – čistý roční zisk přes 800 000 Kč Podíl na pozemcích a společných částech budovy Rychle se rozvíjející lokalita s rostoucí poptávkou Variabilní využití: sídlo firmy, cowork, showroom, školící centrum, lékařská praxe aj. Atraktivní lokalita s kompletní občanskou vybaveností – Nušlova, Praha 13 – Stodůlky Administrativní budova na adrese Nušlova 2515/4 se nachází v jedné z nejlépe dopravně obsloužených a zároveň příjemně obytných částí Prahy – v srdci Stodůlek, jen pár kroků od stanice metra B – Stodůlky. ✅ Dostupnost: Metro B – Stodůlky: 1 minuta chůze Autobusové linky: 137, 149, 174, 184, 225 Výjezd na Pražský okruh i D5 do 5 minut Centrum města do 20 minut MHD Letiště Václava Havla – 15 minut autem Občanská vybavenost: Restaurace a bistra: Škoda Bar (v přízemí budovy) Bistro Baifu, Pizza Rossa, Trattoria Famiglia Coffee Cube, Starbucks (Avion park) Obchody a služby: Albert, Billa, pošta, bankomaty OC Lužiny, Galerie Butovice, Avion Shopping Park (IKEA, Tesco) ZŠ Kuncova, Gymnázium Stodůlky, MŠ v pěším dosahu Poliklinika Lípa Center, Hostinského, lékárny Centrální park, Sportovní centrum Jeremi, squash, fitness Prokopské údolí pár minut od kanceláře Parkování: Veřejné parkoviště přímo před budovou Další možnosti v ulicích i přilehlých objektech Zajímavost na závěr: Stodůlky patří k nejrychleji rostoucím pražským lokalitám – spojují výbornou dopravní dostupnost, rostoucí občanskou vybavenost a podnikatelskou energii.


