Pronájem - kanceláře, 115 m²
K pronájmu: kancelářské prostory, 115 m² – Lublaňská 42, Praha 2 (6. NP)
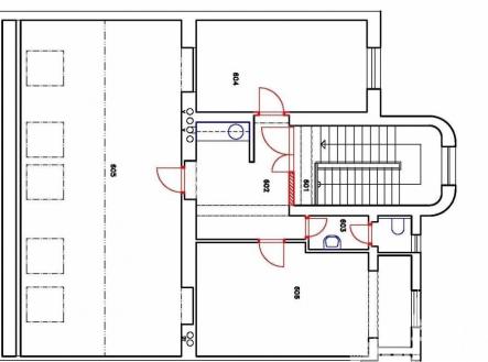
Nabízíme k pronájmu kancelářské prostory o celkové výměře 115 m², umístěné v 6. nadzemním podlaží administrativní budovy v atraktivní lokalitě Prahy 2 – pouhé 2 minuty chůze od stanice metra I. P. Pavlova a v těsné blízkosti Tylova náměstí. Lokalita nabízí skvělou dostupnost MHD i občanskou vybavenost včetně restaurací, kaváren a obchodů. Výborné umístění zajišťuje snadnou dopravní dostupnost pro zaměstnance i klienty. Dispozice a vybavení: - 4 samostatné kanceláře - vstupní hala - kuchyňka - toaleta s umyvadlem - klimatizace - EZS – zabezpečovací systém napojený na PCO - internet, ústředna - dálkové otevírání vstupních dveří přes telefonní linku - přístup výtahem z budovy č. 40 do 5. NP - ústřední plynové topení (vlastní kotelna) - podlahy: lino, v hale a sociálním zázemí dlažba - klidný a udržovaný dům Nová střešní okna včetně žaluzií a kompletní vymalování prostor bíle. Cena pronájmu: 295 Kč/m²/měsíc + DPH Služby: 90 Kč/m²/měsíc (zahrnují zálohy na elektřinu, plyn, vodu, osvětlení a úklid společných prostor) Kauce: ve výši jednoho měsíčního nájemného Neplatíte provizi za zprostředkování. Prostory budou k dispozici od: 15. 9. 2025


