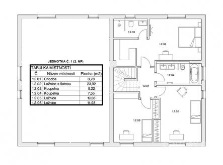
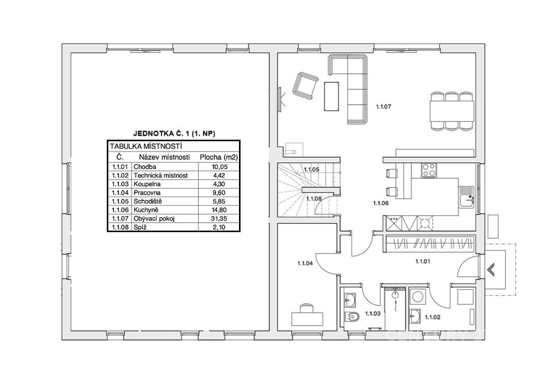
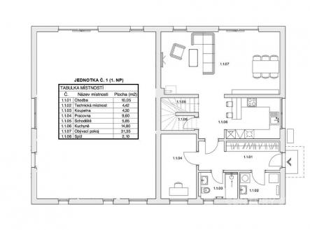
Prodej bytu, 5+kk, 188 m²
Jednotka 5+KK v novostavbě rodinného domu se zahradou
Praha 4 Újezd u Průhonic: Váš nový, úsporný domov s vlastní zahradou! Exkluzivní novostavba 5+KK (157 m²) s unikátní kombinací klidu a dostupnosti ! Hledáte moderní bydlení, kde se snoubí luxus, úspora energie a prvotřídní lokalita? Máme pro vás ideální řešení v jedné z nejoblíbenějších částí Prahy – v Újezdě u Průhonic. Jedná se o plně autonomní bytovou jednotku č. 1 v novostavbě rodinného domu, která byla kolaudována v říjnu 2025. Nyní je čas využít flexibilitu dokončení! Klíčové Výhody, Které Vás Přesvědčí: Prostor a dispozice: Velkorysých 5+KK (157 m²) ve dvou podlažích. Ideální pro rodinný život s dostatkem soukromí. Vlastní zahrada a parkování: Přímý vstup do zeleně a vlastní parkovací stání v ceně! TOP Úspora Energie (Třída B): Tepelné čerpadlo + Podlahové topení. Rekuperace tepla pro zdravé a úsporné bydlení. Příprava na fotovoltaiku. Nadstandardní bydlení: Elektrické žaluzie, příprava pro SmartHome a krb, velkoformátové obklady, značková sanita a zabezpečovací systém. Lokalita: Klid, zeleň a perfektní doprava Můžete si užívat Milíčovský les, Průhonický park, dendrologickou zahradu a okolní rybníky – ideální ráj pro sport a relaxaci (běh, cyklistika). Vše po ruce: Škola, školka, sportoviště a obchody v docházkové vzdálenosti. Nákupy: 10 minut autem do Čestlic, Průhonic a na Chodov. Dostupnost do centra: Zastávka MHD pouhých 170 metrů a rychlé napojení na D1 (2 nájezdy). Možnosti dokončení – Rozhodujete Vy! Dům je z 90 % dokončený. Vyberte si, co vám vyhovuje: A/ Whitewall (Dokončení svépomocí): Maximální úspora a možnost dotvořit si interiér přesně podle svých snů a potřeb. B/ Na klíč: Nechte starosti s dokončením na developerovi a nastěhujte se rovnou do hotového standardu. Rychlé dokončení s garancí! Developer garantuje: • Dokončení stavby do 3 měsíců. Maximální cenu dokončení na klíč: 1 000 000 Kč. Standardy: Villeroy & Boch, Hansgrohe, SOHO, Grohe, Geberit, Provenza. Nenechte si ujít šanci získat energeticky úsporný a moderní domov v jedné z nejžádanějších lokalit Prahy! Kontaktujte nás ještě dnes pro bližší informace a domluvení prohlídky!


