Prodej - obchodní prostor, 94 m²
Investiční komerční prostor v přízemí s výlohou a vlastní terasou - Praha 9, Libeň
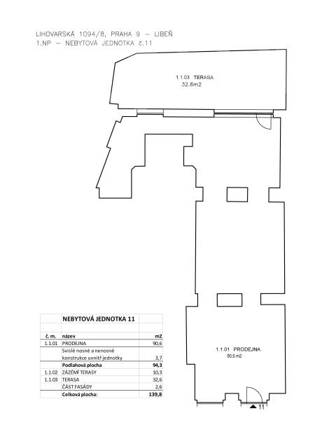
Prodej prémiové komerční jednotky, celkové plochy 139,8 m2 s výrazným potenciálem stabilního výnosu i dlouhodobého zhodnocení, situované v dynamicky s e rozvíjející části Prahy 9 - Libně. Prostor o výměře 94 m2 je řešen jako tři na sebe navazující (průchozí) kancelářské místnosti, což umožňuje plynulý provoz, variabilní uspořádání a efektivní využití plochy. Jednotka je vhodná pro kanceláře, showroom, klientské centrum nebo obchodní provoz. Přímý kontakt s ulicí prostřednictvím výlohy a příprava na podsvícené reklamní označení na fasádě zajišťují vysokou viditelnost a silný obchodní potenciál. Jednotka prošla kompletní rekonstrukcí v roce 2018, její velmi dobrý technický stav nevyžaduje žádné další investice. Každá kancelář vybavena samostatnou klimatizací, prostor disponuje kompletním sociálním zázemím v nadstandardním provedení a je plně zabezpečen kamerovým systémem v interiéru i exteriéru. Významnou přidanou hodnotu zahrnuje soukromá terasa o velikosti 33 m2 , která zvyšuje užitnou hodnotu jednotky i její atraktivitu pro bonitní nájemce. Lokalita Praha 9 - Libeň patří dlouhodobě mezi žádané městské části s vysokou poptávkou po komerčních plochách, s výbornou dostupností MHD a rychlým napojením na hlavní dopravní tahy. Ideální volba pro investory, kteří hledají: • okamžitou možnost pronájmu • stabilní cash flow • ochranu kapitálu v kvalitní nemovitosti • potenciál růstu hodnoty v čase.


