Prodej - dům/vila, 314 m²
Dvougenerační novostavba RD 10+2 v MČ Újezd u Průhonic
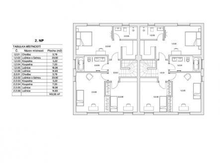
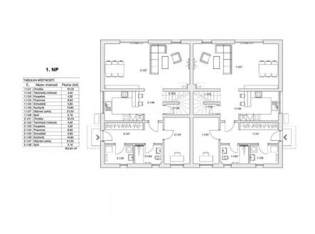
Váš sen o dvougeneračním bydlení a životě v přírodě s městem na dosah! Máte velkou rodinu a hledáte harmonii klidného života, prvotřídního komfortu a aktivního vyžití, aniž byste se vzdali rychlého spojení s centrem Prahy? Právě pro vás máme exkluzivní novostavbu dvougeneračního rodinného domu, která se nachází v jedné z nejvyhledávanějších lokalit – v jihovýchodní okrajové části Prahy, v lukrativním Újezdu u Průhonic. PROSTOR A FLEXIBILITA BEZ KOMPROMISŮ Tento architektonicky promyšlený dům nabízí dvě zcela nezávislé bytové jednotky s dispozicí dvakrát 5+KK, což je ideální řešení pro vícegenerační bydlení, nebo kombinaci vlastního bydlení a investičního pronájmu. • Celková podlahová plocha domu 314 m² rozložená ve dvou jednotkách se dvěma nadzemními podlažími. • Fáze 'WhiteWall': Dům je dokončen z 90 %, což vám dává jedinečnou šanci dokončit interiér (podlahy, dveře, koupelny) přesně podle vašich představ a vkusu. • Možnost "Na Klíč": Chcete se nastěhovat bez starostí? Developer zajistí kompletní dokončení až po předání klíčů. • Kolaudace Říjen 2025. MAXIMÁLNÍ ÚSPORY A NADSTANDARD Užijte si moderní bydlení, které šetří vaši peněženku i planetu. Dům spadá do energetické třídy B (velmi úsporná budova), což zaručuje mimořádně nízké provozní náklady. • Tepelné čerpadlo pro efektivní vytápění a ohřev vody. • Teplovodní podlahové topení v celém domě pro maximální tepelný komfort. • Rekuperace tepla zajišťující další úsporu energií. • Příprava na FVE, smarthome, zabezpečovací systém a krb! • Luxusní prvky: Velkoformátové obklady, značkové sanitární předměty a elektrické žaluzie jsou součástí projektu dokončení „na klíč“ s 10 % doplatkem. LOKALITA, KTERÁ VÁM VEZME DECH Újezd u Průhonic kombinuje klid rezidenční čtvrti s výjimečnou občanskou vybaveností a dechberoucí přírodou. Příroda a Sport: Okolí je rájem pro aktivní život: • Milíčovský les, Průhonický park a dendrologická zahrada jsou ideální pro běh, cyklistiku a rodinné výlety. • V docházkové vzdálenosti najdete sportoviště (fotbal, tenis, fitness) a tři rybníky. Dostupnost a vybavenost: • MHD zastávka: Pouhých 170 metrů od domu. • Rychlé napojení na D1: Dvě varianty nájezdu pro bezproblémovou cestu. • Občanská vybavenost: Škola, školka, obchody, restaurace a kavárna v docházkové vzdálenosti. • Nákupní ráj: Čestlice, Průhonice a nákupní centrum Chodov jsou autem dostupné za pouhých 10 minut. Udělejte první krok ke svému snu! Nenechte si ujít tuto výjimečnou příležitost. Získejte unikátní bydlení, které poroste s vaší rodinou. Kontaktujte nás ještě dnes! Pro bližší informace o ceně, možnostech dokončení a domluvení prohlídky kontaktujte makléře. (Pozn.: Některé fotografie jsou vizuálním návrhem.)


