Prodej bytu, 1+kk, 41 m²
Družstevní byt 1+kk s vestavěným patrem Praha 8 Karlín, Vítkova ul.
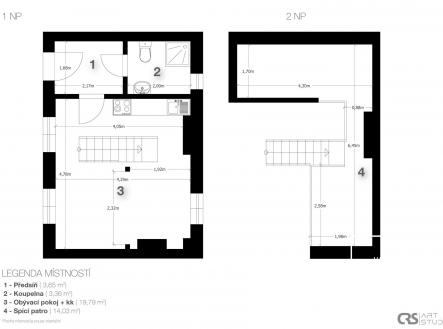
Nabízím vám na prodej družstvení byt (převod členských práv v bytovém družstvu spojené s nájmem bytu) 1+kk s vestavěným patrem na adrese Vítkova 236/15, Praha 8 - Karlín. Chcete bydlet v útulném bytě v docházkové vzdálenosti centra Prahy v sousedství Karlínského náměstí? V přímém sousedctví je umístěna Karlínská synagoga. Nebo chcete investovat do bytu vhodného pro dlouhodobý pronájem ve skvělé lokalitě? Máme pro vás jedinečnou nabídku! Byt má splacenou veškerou anuitu a nic jiného hradit nebudete. Byt je úplně nový a budete jeho první uživatelé. Jsou zde vysoké stropy, které umožnily výstavbu dřevěného vestavěného patra s výměrou 14 m2 s částí na spaní a částí pro pracovnu s výškou 2 metry. Je zde kuchyň, koupelna a veškeré vybavení. Byt je připravený k nastěhování. Přístupný je z pavlače. O nemovitosti: •Adresa: Vítkova 236/15, Praha 8 - Karlín •Dispozice: 1+kk + vestavené patro na spaní a pracovnu. •Rozloha: 27 m² + vestavěné patro 14 m². •Umístění: 3. patro (4. nadzemní podlaží) v cihlovém bytovém domě bez výtahu. •Vlastnictví: Družstevní (financování hypotékou je možné pouze se zástavou jiné vaší nemovitosti). •Parkování: před domem na modrých zónách. Přednosti bytu: •Prostorný obývací pokoj s kuchyňským koutem. Prostor na spaní a pracovna ve vestavěném patře. Byt je krásně prosvětlený a je v domě, který je kompletně opraven a ve velmi dobrém stavu. Další nespornou výhodou je jeho umístění v centru Karlína v docházkové vzdálenosti do centra Prahy a za rohem od Karlínského náměstí. Investiční příležitost: •Vhodné pro vlastní bydlení i jako investice: V této lokalitě je vysoká poptávka po pronájmech •Atraktivní nájmy: Potenciál pro stabilní a zajímavý příjem z pronájmu Financování: •Byt je v družstevním vlastnictví: Financování hypotékou je možné pouze se zástavou jiné vaší nemovitosti. Převod do vlastnictví se neplánuje. •Bezproblémový převod: Vše připraveno k rychlému a hladkému průběhu převodu družstevních práv a vašemu nastěhování. Neváhejte a domluvte si prohlídku ještě dnes!

