Prodej bytu, 3+1, 78 m²
Doporučujeme světlý byt 3+1 s lodžií a sklepem, celkem cca 77,91 m2, Praha 5 - Hlubočepy, ul. Záhor
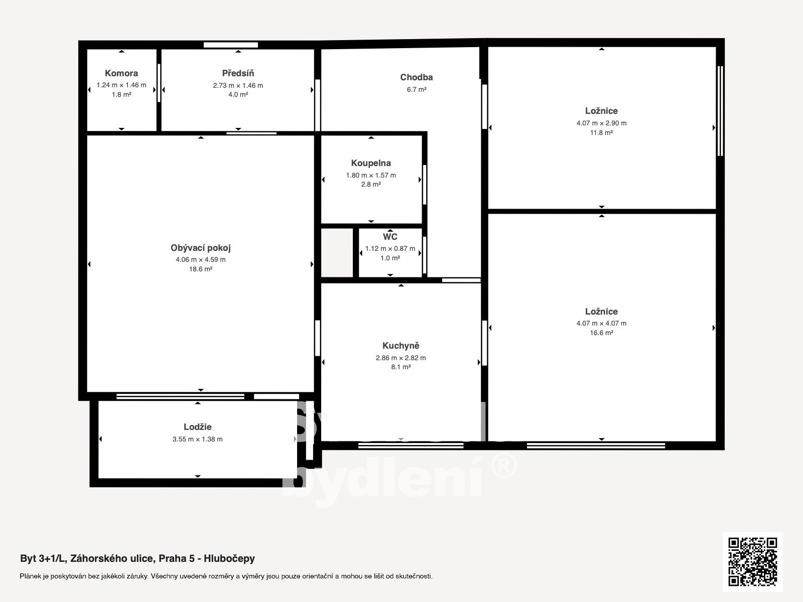
Dovolujeme si vám exkluzivně nabídnout ke koupi dispozičně zajímavý světlý byt s prostornou lodžií a sklepem, nacházející se v 1.patře panelového domu, v ulici Záhorského na Praze 5 - Hlubočepích. Mezi největší výhody patří zmíněná praktická dispozice bytu s možností vlastních úprav a také lokalita v blízkosti zeleně. Vstupní dveře bytu vedou do předsíně (cca 10,74 m2) tvaru L, ze které se vchází do jednotlivých místností. Hned po pravé straně nalezneme praktickou komoru (cca 1,86 m2), proti vstupu pokračujeme do obývacího pokoje (cca 18,5 m2) s lodžií (cca 4,71 m2) a dále do kuchyně (cca 7,92 m2). Po levé straně předsíně se nachází nalevo dvě ložnice (cca 16,36 a 11,64 m2), napravo je koupelna (cca 2,83 m2) a samostatná toaleta (cca 1,04 m2). Čelo předsíně uzavírá další vstup do dříve zmíněné kuchyně. Přesný přehled o dispozici bytu Vám nabídne podrobná virtuální prohlídka. Všechny výměry jsou orientační. Byt je průběžně udržovaný, v původním stavu bez modernizací, je tedy možné si ho přebudovat a upravit dle svých představ tak, aby odpovídal svým vzhledem a rozložením aktuálním potřebám. Byt nabízí příjemné otevřené výhledy do dvou stran, na jihovýchod ( ložnice) a jihozápad (obývací pokoj s lodžií, druhá ložnice a kuchyně). Díky tomu je celý prostor světlý a působí velmi vzdušným dojmem. Koupelna a samostatná toaleta jsou umakartové. V kuchyni je instalována původní kuchyňská linka. Byt disponuje dostatkem úložných prostor v podobě původních vestavných skříní, komory v bytě a také sklepní koje (cca 2,31m2) v 1.PP domu. Panelový dům z cca 90. let je průběžně udržován, prošel zateplením fasády a současně výměnou plastových oken. Vytápění a ohřev vody zajišťuje výměníková stanice v 1.PP. Plocha bytu je cca 70,89m2 plus lodžie cca 4,71m2, plus sklep cca 2,31, tj celkem 77,91m2. Byt je v družstevním vlastnictví (nyní není plánován převod do OV). Měsíční poplatky činí 6.439,-Kč (včetně FO 3.545-Kč) plus měsíční splátka anuity 7.150,-Kč ( do roku 2034, přibližná částka k doplacení celkem je cca 578.000,-Kč a je zahrnuta v uvedené ceně) plus elektřina v bytě. Energetická třída D. Vlastník si vyhrazuje právo výběru lepší nabídky. Lokalita nabízí vše, co je dnes požadováno k pohodlnému a aktivnímu životu - dostatek zeleně, dosah přírody (např. Prokopské údolí, Radotínsko-Chuchelský háj), výbornou dostupnost, samozřejmostí je veškerá občanská vybavenost. Hledáte-li příjemné místo k bydlení, před rekonstrukcí s možností vlastní realizace, ve vyhledávané lokalitě s výbornou dostupností, dovoluji si Vám tuto nabídku jedině doporučit. Prohlídky s vážnými zájemci jsou možné kdykoliv po telefonické dohodě.


