Prodej bytu, 2+kk, 67 m²
Doporučujeme působivý byt po kompletní luxusní rekonstrukci, 2+kk 64,2m2 a komora 2,3m2, Praha 8 - L
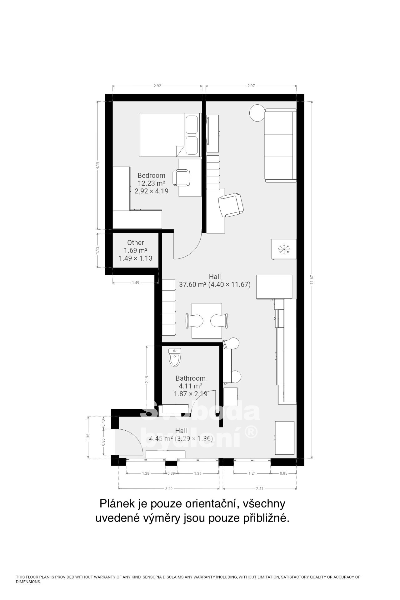
Dovolujeme si vám exkluzivně nabídnout ke koupi zajímavý a luxusně upravený podkrovní byt, nacházející se ve 3. patře cihlového domu s výtahem, ulice Prosecká. Mezi největší výhody patří kompletní působivá rekonstrukce a vybavení i lokalita obklopující zeleně a orientace některých oken s výhledem do vzrostlých stromů. Vstupní dveře bytu vedou do prostorné předsíně (cca 4,5m2) s dostatkem místa pro věšák a botník. Po levé straně nalezneme koupelnu se sprchovým koutem a toaletou. Předsíní pokračujeme do obývacích prostor s kuchyňským koutem (cca 42m2), jež jsou promyšleně a citlivě prakticky děleny na jednotlivé zóny. Po pravé straně je instalována kuchyňská linka se všemi spotřebiči (vestavná myčka, indukční varná deska, trouba, digestoř s odtahem do komína, samostatně stojící lednice, pračka a sušička jsou umístěny skrytě ve skříni). Na protější stěně je umístěn vyklápěcí stolek se židlemi. Navazující obývací prostor nabízí nyní klidovou (po oddělení příčkou by vznikla samostatná místnost, viz původní orientační plánek) a jídelní část. Odsud vcházíme do dveřmi oddělené ložnice (cca 13,4m2) a praktické šatny. Celý byt navozuje útulnou a stylovou atmosférou díky citlivé a praktické promyšlené rekonstrukci včetně jeho současného vybavení, jež je možné v bytě ponechat. Plastová okna v dekoru zlatého dubu jsou s izolačním trojklem, střešní okna Velux jsou opatřena protislunečními roletkami. Celková podlahová plocha bytu je 64,2m2 plus komora 2,3m2 na stejném podlaží u výtahu. Byt je pečlivě udržovaný a vkusně vybavený moderním nábytkem. Historie stavby cihlového domu dle dostupných informací z archivních plánů počíná již roku 1893. K původnímu stylu budovy (např. čelní fasáda) bylo přihlédnuto při její kompletní rekonstrukci a modernizaci, včetně všech bytových jednotek, dokončené roku 2020. Stavba byla např. zateplena, došlo k výměně oken a dveří, výměně technických instalací, střešní betonové krytiny Bramac, krovy jsou ocelovo-dřevěné, byla provedena přístavba výtahu a přístavba rampy pro bezbariérový přístup. Vytápění a ohřev vody je řešeno dvojicí plynových kondenzačních kotlů v kotelně v 1.PP domu. V domě lze využít společné prostory / kolárnu. Parkování je možné v okolních ulicích domu. Měsíční poplatky za bytovou jednotku činí 5.259,-Kč (včetně fondu oprav 1.926,-Kč) + elektřina v bytě. Byt je v osobním vlastnictví. Energetická třída C. Vlastník si vyhrazuje právo výběru lepší nabídky. V blízkosti bydlení nalezneme dostatek zeleně (např. přírodní památka Prosecké skály, cyklotrasy či naučná stezka podél Rokytky), v pěším dosahu je autobusová a tramvajová zastávka, vlaková stanice Vysočany je vzdálena cca 1,4km, metro trasy "B" a "C" cca 1,5km (cca 5min autobusem). Hledáte-li ojedinělý byt s působivou atmosférou, s možností okamžitého bydlení, dovoluji si Vám tuto výjimečnou nabídku jedině doporučit.


