Prodej bytu, 3+1, 73 m²
Byt 3+1 s lodžií, Praha - Bohnice
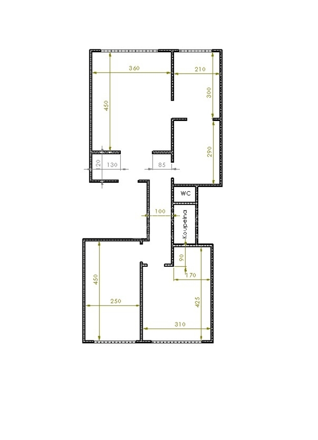
Nabízím k prodeji byt 3+1 s lodžií v osobním vlastnictví, na pěkném místě v ulici Poznaňská, Praha – Bohnice. Byt v prvním patře má lodžii směrem do zeleně a je určen ke kompletní rekonstrukci. Nyní se vyklízí, proto nemáme u inzerátu foto, bude předán kompletně vyklizený. Čistá výměra bytu 64,17 m2 + 6,96 m2 lodžie + sklep 1,6 m2. Nedaleko domu mateřská a základní škola, hřiště, poliklinika a především 200 metrů vzdálené obchodní Centrum Krakov. Na bytě nevázne žádný závazek, čistý list vlastnictví, možnost financování hypotečním úvěrem, se kterým rádi pomůžeme. Více informací na níže uvedeném kontaktu.


