Prodej bytu, 2+kk, 43 m²
Byt 2+kk – Konstantinova 1498, Praha 11 - Chodov
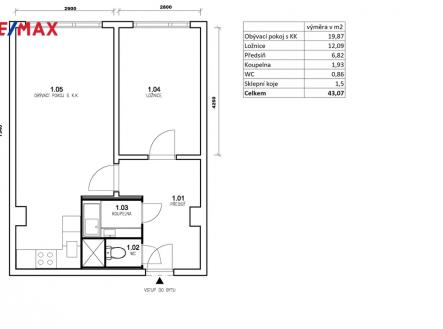
Exkluzivně Vám nabízíme ke koupi moderní byt 2+kk po kompletní nadstandardní rekonstrukci v osobním vlastnictví ve vyhledávané lokalitě s výbornou dostupností metra B - Háje. Podlahová plocha bytu je 41,5 m2 a k dispozici je také sklepní kóje 1,5 m2. Byt prošel kompletní rekonstrukcí: elektro-rozvody vč. počítačové sítě, rozvody vody a kanalizace, štuky a malby, dlažby, vinylové podlahy a dveře s obložkovými zárubněmi, nová zděná koupelna s moderním sprchovým koutem s vaničkou z litého mramoru, vedle samostatně oddělené závěsné WC. Dominantou bytu je obývací pokoj s kuchyňským koutem, kde je zcela nová linka na míru od truhláře osazená značkovými spotřebiči, indukční deska, vestavná mikrovlnná trouba, digestoř, myčka a trouba. Rekonstrukce je nadstandardní jak použitými materiály a vybavením, tak provedením. Výhodou jsou předokenní žaluzie. Vytápění i ohřev vody je centrální. Bytová jednotka se nachází v 5.patře, s krásným výhledem do okolí. Přímo za domem je centrální park a v blízkosti Milíčovský les, místa jako stvořená pro procházky s relaxačními zónami, dětskými hřišti a cyklostezkami. Dům je zateplený, zrekonstruovaný, má výnosy z nebytových prostor. V domě je prostorný výtah. V pěší vzdálenosti je stanice metra Háje, parkování je možné přímo před domem, je zde několik parkovišť, nejsou zde parkovací zóny. V okolí je veškeré občanské vybavení, u domu nachází základní škola i mateřské školy, gymnázia, dětská hřiště i sportoviště, zimní hala, poliklinika, nedaleko OC Opatov, několik supermarketů, kavárny a bistra. V případě více zájemců si prodávající vyhrazuje právo vybrat nejvýhodnější nabídku. Těším se na setkání s vámi na prohlídce.


