Prodej bytu, 2+1, 46 m²
Byt 2+1/L, Praha 9 Vysočany
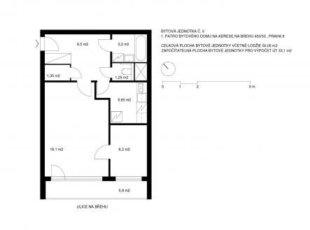
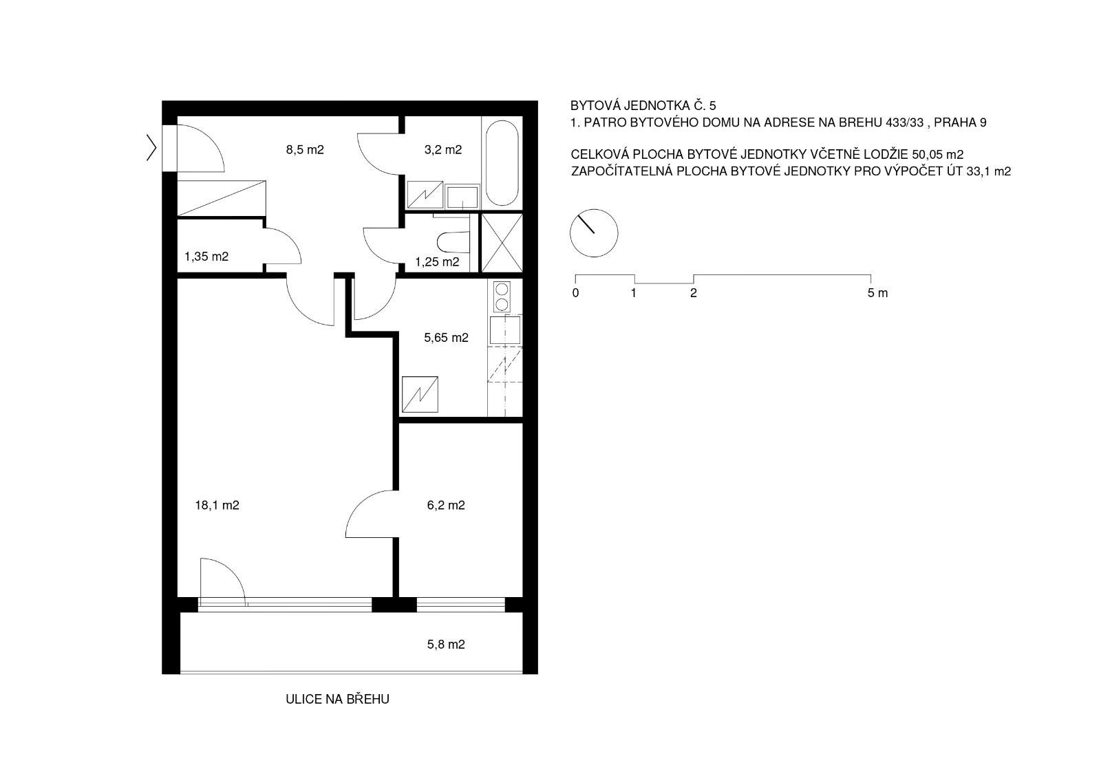
Nabízíme k prodeji byt po rekonstrukci o velikosti 2+1 s lodžií, s užitnou plochou 51 m², který se nachází v žádané lokalitě Praha 9 Vysočany. Byt je umístěn v 1. patře panelového domu a má 45,50 m² podlahové plochy. K bytu náleží také sklep a lodžie o velikosti 5,8 m², která poskytuje další prostor pro relaxaci a odpočinek. Orientaci bytu ocení každý, kdo hledá klid a zároveň chce být blízko městského ruchu. Nedaleká Rokytka, tenisové kurty, rozlehlý park a cyklostezka jsou další výhodou této lokality pro sportovní vyžití. Interiér bytu je částečně zařízený domácí spotřebiče, jako jsou indukční varná deska, mikrovlnná trouba, samostatně stojící lednice, vestavěná elektrická trouba, digestoř a pračka. V blízkosti se nachází veškerá občanská vybavenost Městský úřad, banka, školky, Základní škola, pošta, nákupní centrum, restaurace a další služby, které zaručují vysokou kvalitu bydlení. Dopravní dostupnost je také výborná, v blízkosti se nachází stanice metra a městské dopravy, ale i vlaku, což usnadňuje rychlý přesun po celé Praze i mimo Prahu. Domluvte si prohlídku a přijďte se přesvědčit, že Vysočany mohou být právě to pravé místo pro váš nový domov.


