Prodej bytu, 2+kk, 65 m²
Bydlení, kde Vinohrady potkávají Žižkov. Praha 3, 5 minut od metra Flora – S vaším příběhem!x
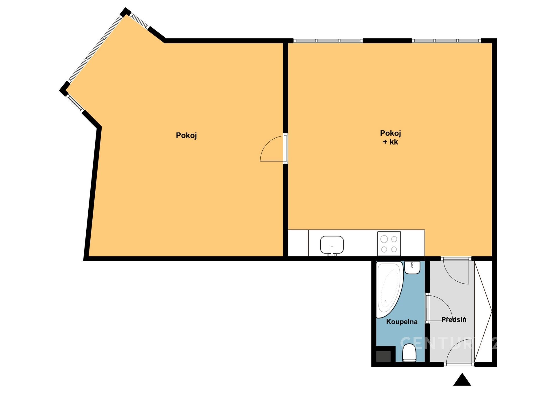
Exkluzivně nabízíme prostorný a světlý byt 2+kk se sklepní kójí (65 m² + sklep 1,5 m²) v činžovním cihlovém domě z roku cca 1928, který se nachází v klidné ulici na rozhraní Vinohrad a katastrálního území Žižkova – pouhých 5 minut chůze od stanice metra A – Flora. Byt je situován v 1. patře domu s výtahem. V domě proběhly průběžné rekonstrukce: v roce 2021 částečná oprava střechy a zavedení optického internetu, v roce 2023 instalace nových digitálních vodoměrů. Dřevěná špaletová okna byla vyměněna zhruba před 10 lety. Přednosti bytu: V roce 2006 prošel byt kompletní rekonstrukcí (rozvody vody, elektřiny aj.). Topení a ohřev vody zajišťuje plynový kotel v bytě. Podlahy tvoří dřevěné parkety a keramická dlažba. Kuchyňský kout je vybaven spotřebiči: plynový sporák, elektrická trouba, digestoř, lednice s mrazáčkem. Prostorný obývací pokoj nabízí mimořádné množství denního světla díky rohové poloze v domě a orientaci na jihozápad. Lokalita: Vinohrady nabízejí příjemnou atmosféru s množstvím kaváren a restaurací (česká, francouzská, italská, mexická, japonská aj.). V docházkové vzdálenosti se nachází Riegrovy sady, Mahlerovy sady a Žižkovská věž. V okolí je kompletní občanská vybavenost – školy, školky, lékaři, banky, obchody. OC Flora je jen pár minut pěšky, na Jiřím z Poděbrad se pravidelně konají oblíbené farmářské trhy a kulturní akce. Do centra Prahy se metrem dostanete za 6–7 minut. Jedná se o velmi žádanou lokalitu pro bydlení. Náklady na bydlení: Fond oprav 2025: 1 868 Kč Služby pro jednu osobu: 889 Kč Celkem: 2 757 Kč / měsíc Nákup je možné financovat hypotečním úvěrem, se kterým Vám rádi pomůžeme. Díky výjimečné poloze u širšího centra, blízkosti parků, škol i obchodů představuje byt ideální volbu jak pro vlastní bydlení, tak jako investici. Pro více informací volejte makléřku: +420 725 293 228


