Prodej bytu, 2+kk, 44 m²
Prodej bytu, 2+kk, 44 m2
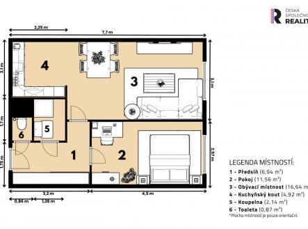
Byt 2+kk, celková výměra 44,6 m² včetně sklepa – soukromí a přímý kontakt s Píšovickým lesem. Nabízíme družstevní byt o dispozici 2+kk a celkové výměře 44,6 m² včetně sklepa, situovaný v Praze Modřanech, v ulici Krouzova. Jde o část sídliště, která je v rámci Modřan výjimečná především uspořádáním okolní zástavby a bezprostředním kontaktem se zelení. Namísto obvyklého sídlištního pohledu do protějších oken nabízí byt výhled do otevřeného prostoru se zelení, přičemž dům přímo navazuje na parkovou a lesní oblast. Díky tomu je v bytě zajištěno větší soukromí. Stav bytu je před rekonstrukcí, zároveň je ale plně vyhovující pro okamžitý pronájem. Byt má zděné bytové jádro, funkční dispozici a nevyžaduje akutní investice, pokud je záměrem pronajímání. Pro budoucího majitele tak nabízí kombinaci okamžité využitelnosti a potenciálu zhodnocení po rekonstrukci. Zásadní předností bytu je jeho poloha vůči zeleni. Z druhé strany domu přímo navazuje Píšovický les, do kterého se vstupuje prakticky přímo od domu. Nejde o vzdálený park, ale o souvislý lesní celek, který tvoří přirozené zázemí pro každodenní procházky, běh nebo venčení psa. V širším okolí se nachází také Lesopark Hodkovičky, Modřanská rokle a další travnaté a zalesněné plochy, které doplňují charakter lokality a rozšiřují možnosti volnočasových aktivit, aniž by narušovaly klid bezprostředního okolí domu. Občanská vybavenost je řešena prakticky, obchody včetně Kauflandu a DM, služby i Obchodní náměstí v Modřanech jsou v docházkové vzdálenosti. Lokalita má stabilní poptávku po nájemním bydlení a dobrou dostupnost MHD. Byt je vhodný jak pro vlastní bydlení s důrazem na klid a zeleň, tak jako dlouhodobá investice postavená na kvalitním umístění, nikoli na krátkodobém efektu rekonstrukce. Byt je ihned volný. Družstevní byt může oproti bytům v osobním vlastnictví nabídnout určité praktické výhody, zejména z pohledu pronajímání a nižší administrativní zátěže. Převod družstevního podílu je oproti převodu bytu v osobním vlastnictví výrazně rychlejší a jednodušší, přičemž družstevní bydlení je v této lokalitě dlouhodobě stabilní a dobře fungující. Vzhledem k tomu, že byt je prázdný a připravený nastěhování, může jak samotný převod, tak následné nastěhování proběhnout ve velmi krátkém časovém horizontu. Energetický průkaz budovy bude dodatečně doložen. V domě proběhla realizace nové střechy se zateplením, a proto je zpracováván aktualizovaný energetický štítek odpovídající současnému stavu objektu. Dům je proto dočasně označen nejhorší energetickou třídou. V bytě probíhají finální dokončovací práce a příprava na prohlídky, 3. a 4. 2. 2026 od odpoledne do pozdního večera plánujeme na této nemovitosti první prohlídkové dny. V případě zájmu jsme schopni pomoci se zajištěním financování odpovídajícího formě družstevního vlastnictví. Pro bližší informace nebo odkaz na webovou stránku s detailním popisem bytu nás neváhejte kontaktovat.


