Prodej - dům/vila, 95 m²
Prodej novostavby 4+kk, dle FENG SHUI 95 m2 ,2 parkovací stání, terasa a zahrada, Prachatice
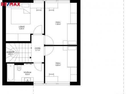
Nabízím novostavbu, ve které se snoubí moderní design, pozitivní Feng Shui energie s energetickou úsporností třída A . Jedná se o dvoupodlažní dřevostavbu o užitné ploše 95m2 s dvěma parkovacími stáními/ jedno z nich zastřešené/, vlastní soukromou zahradou, zastřešenou terasou s možností dokoupení garáže. Dům je krajní, obklopen vzrostou zelení a je vytvořen dle FENG SHUI projektu. INTERIÉR: Při vstupu do domu vás okouzlí velké zrcadlo a dřevěná stěna v prostorné vstupní chodbě z níž vedou krásné dveře v zeleném dekoru na toaletu. Naproti je vstup do technické místnosti s kondenzačním kotlem a prostorem na pračku, sušičku. Prosvětlený obývací pokoj propojený s kuchyňským koutem a jídelnou nabízí vzdušný prostor pro rodinná setkání. Velká okna zajišťují dostatek denního světla a přímý vstup na zastřešenou terasu s nezaměnitelným výhledem na Prachatice. Jídelní kout je vybaven stolem z masivu, židlemi. Kuchyňská linka i ostrůvek je sladěn k celému interiéru. Dubové schodiště s kovovým zábradlím vás zavede do horního patra, které disponuje třemi neprůchozími pokoji z nichž je krásný výhled do zeleně. V patře se nachází i designová koupelna s vanou a toaletou. Skříňka i podsvětlené kulaté zrcadlo je součástí vybavení. V celém domě je použita kvalitní laminátová podlaha nebo velkoformátová dlažba, zabudované kolejnice na záclony a závěsy a designové osvětlení. EXTERIÉR : Vnější podoba domu přináší harmonii, která vás uchvátí svou pečlivou kombinací promyšlených detailů. Předzahrádka, zdobená okrasnými rostlinami, solitérním kamenem osvíceným soumraovým systémem, podtrhuje celkový estetický dojem. Obložená, podsvícená zeď kameny s dominantní plechovou brankou oddělující přední parkovací místo od zahrady přidává na atraktivitě. Jedno /ze dvou/ parkovacích stání je kryté a vybavené třífázovou zásuvkou. Krytá terasa má jihozápadní orientaci. Část pozemku za domem je rovná a dálepak se pozemek pozvolna svažuje. Svařovaný antracitový plot na pozemku poskytne nejen soukromí, ale i bezpečí. TECHNOLOGIE Tento mimořádně úsporný dům s energetickou náročností třídy A, vám umožní žít efektivně s nízkými náklady. Vytápění je zajištěno tepelným čerpadlem vzduch/voda DE DIETRICH 6kw, které je spolehlivě doplněno podlahovým topením v přízemí a radiátory v horním patře. Možnost instalace fotovoltaické elektrárny, která vám umožní vyrábět vlastní energii. Dům je připraven k okamžitému nastěhování. V rámci prodeje jsem vám připravena poskytnout poradenství k dotvoření interieru dle Feng Shui celého domu. Pro nové majitele mám připravený nejen Feng Shui projekt, ale i dar, který jim bude v domě dělat radost. Nepředávám jen nemovitost, předávám domov…

