Prodej - dům/vila, 58 m²
PRODEJ RD 2+1 SE STAVEBNÍM POZEMKEM, PONĚTOVSKÁ PRACE
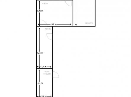
Zajímavá uliční šíře, pozemek s možností výstavby dalšího domu a štědrá zahrada přístupná i ze zadní části… To jsou základní parametry právě tohoto řadového rodinnému domu s dispozicí 2+1, který se nachází na ulici Ponětovská v obci Prace. Podlahová plocha domu činí přibližně 58 m2, přičemž na hlavní stavbu navazují hospodářské přístavky o ploše cca 22,6 m2 a otevřená stodola s výměrou 33,5 m2. Hospodářské přístavky jsou částečně podsklepené. Celková plocha pozemku činí 801 m2. Dům je svým stavem určen ke generální rekonstrukci nebo demolici. Dle současného územního plánu lze u nové výstavby počítat s jedním nadzemním podlažím a obytným podkrovím. Dále je potřeba počítat se sedlovou střechou. Minimální poměr zeleně na pozemku musí činit 40 %. Současná konstrukce domu je ze smíšeného zdiva a není zateplena. Základy jsou smíšené kamenné bez hydroizolací. Okna jsou původní – dřevěná kastlová. Na domě je v uliční části sedlová střecha a ve dvorní části pak pultová. Do domu je zavedena elektřina a je zde také zbudovaná přípojka k plynu (aktuálně odpojeno). Vodovodní a kanalizační řád je doveden do průjezdu domu. Přípojky do domu nejsou vybudovány. Na pozemku je dále studna na užitkovou vodu. Dispozice domu se skládá ze vstupní chodby a tří pokojů. V současném dispozičním řešení není koupelna ani WC. V neposlední řadě je potřeba také zmínit možnost nové výstavby na zahradě za domem. S ohledem na šíři pozemku lze uvažovat o umístění dvojdomu společně s vlastníkem sousední nezastavěné parcely nebo lze realizovat výstavbu samostatně stojícího domu. V tuto chvíli je zpracována studie zastavitelnosti rodinným domem formou dvojdomu. K umístění stavby na hranici pozemku je v rámci studie zajištěn písemný souhlas vlastníka vedlejší parcely. Řešení počítá s domem o dispozici 5+KK o zastavěné ploše 75 m2. Užitná plocha domu pak činí 103,4 m2. Počítá se také s vybudováním dvou parkovacích míst před domem. Z inženýrských sítí se na hranici pozemku nachází elektrická síť a veřejný vodovod. Kanalizace je ve vzdálenosti přibližně 100 metrů. Odpady je tak lepší řešit septikem či jímkou jako u sousedních staveb. Příjezd na pozemek je po komunikaci ve vlastnictví obce. Pokud tedy právě hledáte nemovitost, která má zajímavý pozemek, dobrou uliční šíři a nebojíte se pustit do větší rekonstrukce či výstavby, pak by pro Vás tato možnost mohla být tou pravou. Nemovitost je k dispozici ihned, prohlídky jsou možné po předchozí telefonické dohodě.


