Prodej - pozemek pro bydlení, 319 m²
PRODEJ POZEMKU URČENÉHO K VÝSTAVBĚ, ZAHRÁDKY, PRACE
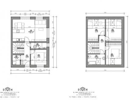
Klidné místo v boční ulici, menší zahrádka nenáročná na údržbu a možnost vybudování parkování před domem… To jsou hlavní parametry právě tohoto pozemku, který se nachází na ulici Zahrádky v obci Prace. Výměra pozemku je přibližně 319 m2 a jeho přibližný rozměr činí 32 x 9,95 metrů. Orientace pozemku je na jihozápad a severovýchod. Terén pozemku je mírně svažitý. Dle současného územního plánu je pozemek určen k rodinnému bydlení. Dalšími podmínkami nové výstavby je umístění stavby do vzdálenosti 8,5 metru od příjezdové komunikace a minimální poměr zeleně 40 %. Stavba samotná se může skládat nanejvýše z jednoho nadzemního podlaží a obytného podkroví, přičemž je potřeba dodržet sedlovou střechu. S ohledem na šíři pozemku lze uvažovat o umístění dvojdomu společně s vlastníkem sousední nezastavěné parcely nebo lze realizovat výstavbu samostatně stojícího domu. V tuto chvíli je zpracována studie zastavitelnosti rodinným domem formou dvojdomu. K umístění stavby na hranici pozemku je v rámci studie zajištěn písemný souhlas vlastníka vedlejší parcely. Řešení počítá s domem o dispozici 5+KK o zastavěné ploše 75 m2. Užitná plocha domu pak činí 103,4 m2. Počítá se také s vybudováním dvou parkovacích míst před domem. Z inženýrských sítí se na hranici pozemku nachází elektrická síť a veřejný vodovod. Kanalizace je ve vzdálenosti přibližně 100 metrů. Odpady je tak lepší řešit septikem či jímkou jako u sousedních staveb. Příjezd na pozemek je po komunikaci ve vlastnictví obce. Pokud tedy právě hledáte menší kompaktní pozemek se zahrádkou na klidné ulici, na který se pohodlně vejde plnohodnotný dům s dispozicí 5+KK a venkovním parkováním, pak jste možná našli ten pravý. Díky dostatečné šířce a možnosti stavět na hranici pozemku lze realizovat výstavbu standardního rodinného domu, který bude splňovat všechny současné nároky na komfortní bydlení. Pro více informací se na nás neváhejte obrátit. Prohlídky jsou možné po předchozí telefonické dohodě.


