Prodej - pozemek pro bydlení, 2 519 m²
Prodej pozemku 2519 m²
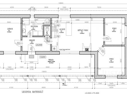
V zastoupení majitele Vám nabízíme k prodeji atraktivní stavební pozemek o výměře 2 519 m² v obci Povrly, okres Ústí nad Labem. Pozemek se nachází v klidné části obce a je ideální pro výstavbu rodinného domu. Hlavní výhody: • Stavební povolení v ceně – již je vydané a platné. • Zahájená stavba – nový majitel může okamžitě navázat a začít stavět. • Projektová dokumentace k dispozici – součástí prodeje, není nutné řešit nové plány. • Příjemné a klidné okolí – ideální pro rodinné bydlení s výbornou dostupností do Ústí nad Labem. Pozemek je připravený pro realizaci Vašeho vysněného domova bez zdlouhavého vyřizování povolení. Neváhejte mě kontaktovat pro více informací nebo domluvení prohlídky.

