Prodej bytu, 3+kk, 90 m²
Byt 3+kk
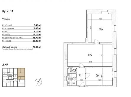
V unikátním rezidenčním projektu v Postupicích u Benešova nabízíme moderní byt 3+kk o velikosti 90,2 m² ve 2. nadzemním podlaží. Projekt spojuje kouzlo historie s nejvyšším standardem současného bydlení. Každý byt je pečlivě navržen tak, aby poskytoval maximální pohodlí, dostatek světla a funkční uspořádání pro moderní život. Vhodné pro rodiny, jednotlivce i investory. ✔ Parkovací stání a možnost garáží přímo v areálu ✔ Dětské hřiště v bezpečném vnitrobloku ✔ Klidná lokalita s rychlou dostupností do Benešova i Prahy ✔ Kompletní občanská vybavenost v docházkové vzdálenosti (škola, školka, obchody, restaurace) Technické informace o stavbě: Rekonstrukce probíhá s respektem k historické hodnotě objektu a zároveň s důrazem na moderní standardy: Konstrukce: Smíšené a cihelné zdivo, zdi o tloušťce 300–1000 mm, založené na kamenných pasech. Stropy: Dřevěné trámové, často zdvojené pro lepší akustiku a nosnost. Příčky: Porobeton (Ytong KLASIK) pro výbornou tepelnou a zvukovou izolaci. Vytápění: Teplovodní systém – podlahové topení. Vlastní elektrokotel 6 kW, umístěný v koupelně, chodbě nebo šatně. Ohřev vody: Elektrické akumulační bojlery (100–120 l) v každé jednotce. Společné prostory: Temperované elektrickými přímotopy na 15 °C. Napojení na inženýrské sítě: Nové přípojky na veřejný vodovod a kanalizaci v ulici Průběžná, napojení na silnoproudou elektřinu (ČEZ). Kanalizace dešťová: Řešena zasakováním a napojením na stávající systém. Začněte novou kapitolu v unikátním prostředí historického domu s duší a pohodlím moderního domova. Kontaktujte nás pro více informací nebo sjednání prohlídky!


