Prodej - dům/vila, 240 m²
Prodej rodinného domu, 240 m², Postoloprty, ul. Štefánikova
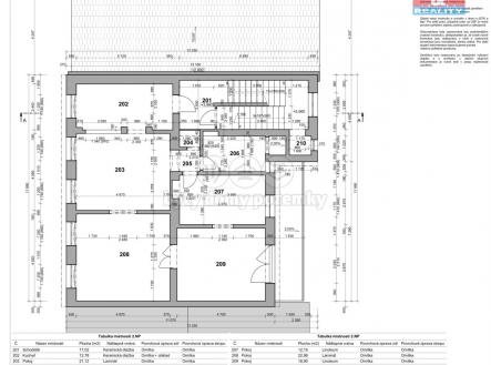
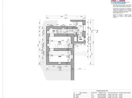
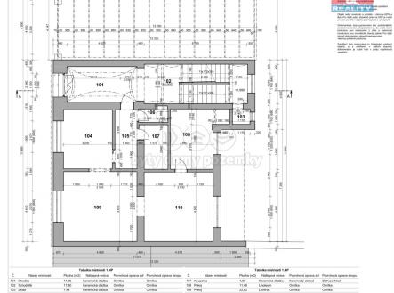
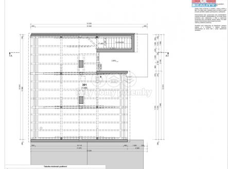
Nabízíme k prodeji prostorný rodinný dům v klidné části obce Postoloprty. Tato řadová nemovitost o užitné ploše 240 m² se rozkládá na pozemku o velikosti 489 m². Dům je smíšené konstrukce a je ve velmi dobrém stavu, připraven k okamžitému nastěhování. Nabízí dvě nadzemní a jedno podzemní podlaží, celkem 9 místností, což poskytuje dostatek prostoru pro větší rodinu. K dispozici je také balkón, ideální pro relaxaci s výhledem do okolí. Výhodou této nemovitosti je její umístění v klidné části obce, které zajišťuje příjemné a tiché bydlení. Neváhejte nás kontaktovat pro více informací nebo sjednání prohlídky.


