Pronájem bytu, 2+1, 50 m²
Pronájem bytu 2+1 50 m2 Hegerova, Polička
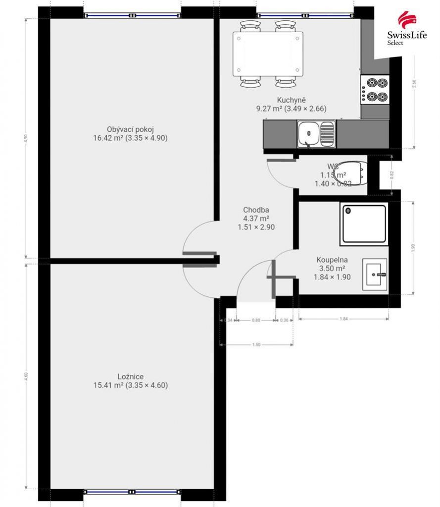
K dlouhodobému pronájmu nabízím zrekonstruovaný, dobře řešený byt s krásnými výhledy a parkovacím stáním. Nachází se v prvním patře cihlového domu, kde je ve vchodě pouze šest bytových jednotek. Moderní kuchyně s dostatkem úložného prostoru, velká vestavěná skříň v ložnici, prostorný sprchový kout. To vše a ještě více jsou benefity tohoto bydlení. Přímo naproti bytu máte k dispozici komoru, která je v současné době využívána jako špajz. V přízemí domu k bytu náleží prostorný sklep a na patře, kde jsou pouze dvě bytové jednotky, můžete dle libosti využívat společnou lodžii. Náklady na bydlení pro tříčlennou rodinu vychází nyní na 6 829 Kč, včetně internetu a televize. Ale protože je bytovka čerstvě zateplená, předpokládá se velká úspora. Ta se však propíše až v dubnovém zúčtování. Pokud Vás nabídka oslovila, kontaktujte mě a domluvte si termín své prohlídky, kde se na Vás budu těšit já, Denisa Havlíková.


