Prodej - pozemek pro bydlení, 911 m²
Stavební pozemek s projektem na dřevostavbu, 911m2, Police u Úsova
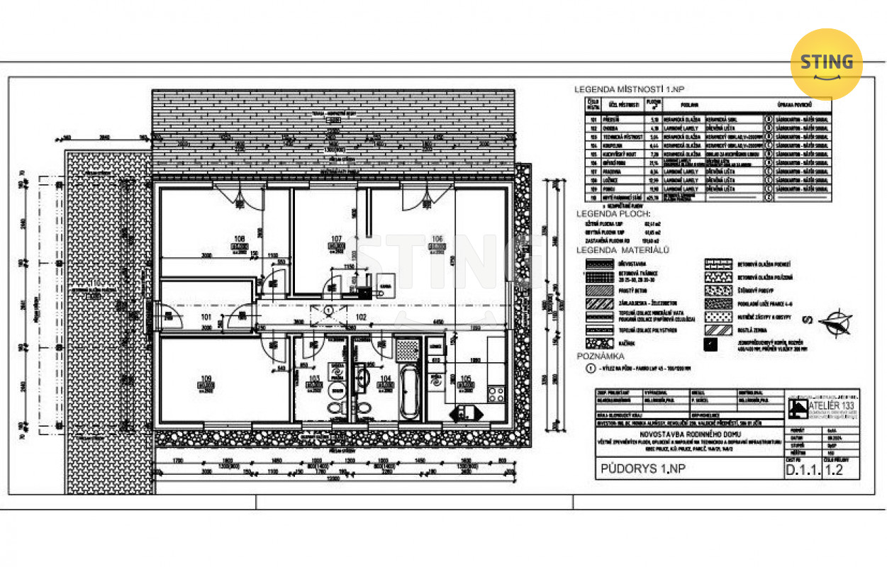
Hledáte pro svoji rodinu vysněný pozemek pro bydlení připravený ke stavbě domu? Navíc nedaleko Mohelnice i Uničova na slunné lokalitě obce Police v nově vznikající čtvrti Na Trávníku? Rovinatý pozemek je určený územním plánem k zastavění a má výměru 911m2. Je přibližně obdélníkového tvaru a jsou zde již vybudované přípojky inženýrských sítí na hranici pozemku( elektřina, plyn, voda), asfaltová komunikace, veřejné osvětlení. Kanalizaci nutno řešit jímkou případně čističkou se vsakem. Součástí prodeje je i vydané stavební povolení na stavbu dřevostavby 4+kk, v současnosti započala výstavba skrývkou zeminy. Lokalita ideální pro rodiny s dětmi, město Úsov vzdálené necelé 2km disponuje občanskou vybaveností- škola, školka, obchody, pošta, muzeum. V okolních městech Mohelnici či Zábřehu dostatek pracovních příležitostí v místních firmách. Nedaleko známé turistické cíle- zámek Úsov, levandulový statek Bezděkov, skalní vyhlídka Bradlo či Čokoládovna Troubelice. Doporučuji prohlídku. Do konce února 2026 nabízíme prostřednictvím našeho partnera úrokové sazby od 4,29 % p.a. Více informací Vám sdělí náš specialista na prohlídce.


