Prodej - dům/vila, 129 m²
Prodej rodinného domu, 129 m², Polerady
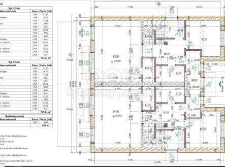
Rodinný dům se zahradou v Poleradech u Prahy. Nabízíme k prodeji polovinu rodinného domu o užitné ploše 129m², kde v přízemí je: - obytná kuchyň o ploše 29m² se vstupem na zahradu, - spíž 3m² - kancelář 11m² - koupelna se sprchovým koutem 4,7m² - chodba 11,8m² - schodiště 5m² - a technická místnost 3,6m² Nadzemní podlaží: - první ložnice o ploše 13,5m² - druhá ložnice o ploše 14,9m² - třetí ložnice o ploše 14,9m² - šatna 5,6m² - koupelna s vanou a sprchovým koutem 6,4m² - chodba 4,4m² - balkon 8m² Dům je velmi prostorný s příjemnou zahradou, na které můžete mít bazén, domeček pro děti, grilovat a posedět s přáteli. Přijďte se podívat na váš nový domov.


