Prodej - dům/vila, 129 m²
Prodej 1/2 rodinného domu, 5+kk, Polerady
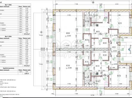
Nabízíme k prodeji polovinu rodinného domu se zahrádkou v Poleradech u Prahy. Dispozice 5kk s terasou a užitnou plochou 129m2. Dům se v současné chvíli dokončuje a bude připraven k nastěhování v srpnu 2025. Zavolejte si o prohlídku a přijďte se podívat na Váš nový domov.


