Prodej - pozemek pro bydlení, 1 012 m²
Prodej stavebního pozemku 1012m2, včetně stavebního povolení, k.ú. Podmolí (blízko NP Podyjí)
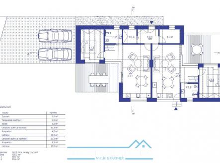
Aktualizovaná cena do konce prosince 2025! K prodeji nabízíme exkluzivní stavební pozemek o celkové výměře 1012m2, s vyřízeným stavebním povolením na stavbu rodinného domu o 2 bytových jednotkách, či je možné aby si zde kupující postavil i samotný dům jen pro vlastní bydlení. Stavební pozemek se nachází v obci Podmolí, v blízkosti Národního parku Podyjí, ale také v blízkosti Rakouských hranic, od Znojma je obec vzdálená 10 minut jízdy autem. Velkým benefitem je vyřízené stavební povolení, kde architektonickou studii vytvořila renomovaná architektonická kancelář ORA, se sídlem Rooseveltova, Znojmo, kteří stojí za projekty typu Kocanda Kravsko apod., a pyšní se také několika významnými oceněními. Na pozemek se přijíždí po asflatové komunikaci, je zde elektřina, obecní vodovod i kanalizace, čili co se týče inženýrských sítí, je pozemek kompletně zajištěn. Dům je koncipován dvěmi způsoby: - 2x jednotka 3+kk - 1x jednotka 5+kk Záleží na kupujícím a jeho požadavcích na využití nemovitosti. Co stojí také za zmínku je to, že vyřízení stavebního povolení v obdobných oblastech trvá více než 1,5 roku, což byl případ i zde, jelikož je vše třeba konzultovat s Národním parkem, životním prostředím apod., zde je však vše schválené, a budoucímu majiteli stačí and #34;jen kopnout do země and #34;. Hodnote studie s projektem se pohybuje v řádu 400.000,- Kč. a tohle vše už má nový majitel rovněž uhrazené. Pro bližší informace kontaktujte pana Ing. Miklíka, volat můžete kdykoliv, včetně víkendů a svátků.


